Plan No.631261
Sensational Home Designed For Views
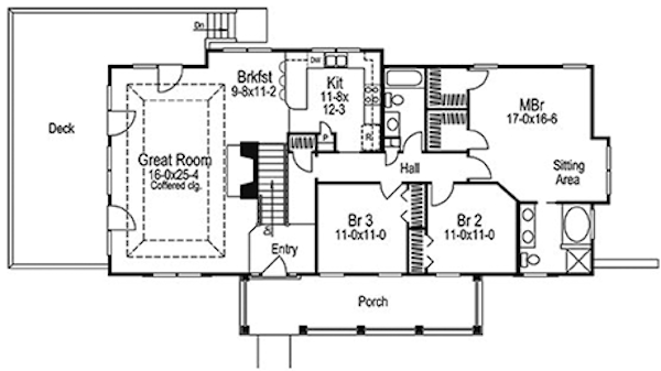
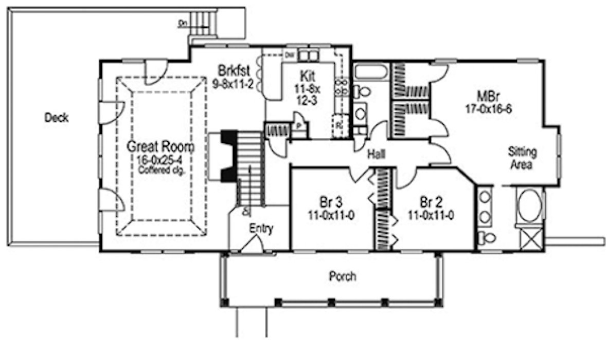
This Southern Home has 3 bedrooms and 2 full baths. The front exterior includes an attractive gable-end arched window and extra-deep porch. A grand-scale great room enjoys a coffered ceiling, fireplace, access to the wrap-around deck and is brightly lit with numerous French doors and windows. The master bedroom has a sitting area, double walk-in closets and a luxury bath. Optional finished space on the lower level.
Specifications
Total 1621 sq ft
- Main: 1621
- Second: 0
- Third: 0
- Loft/Bonus: 0
- Basement: 1203
- Garage: 641
Rooms
- Beds: 3
- Baths: 2
- 1/2 Bath: 0
- 3/4 Bath: 0
Ceiling Height
- Main:
- Second:
- Third:
- Loft/Bonus:
- Basement:
- Garage:
Details
- Exterior Walls: 2x4
- Garage Type: doubleGarage
- Width: 62'0
- Depth: 35'0
Roof
- Max Ridge Height:
- Comments: ()
- Primary Pitch: 0/12
- Secondary Pitch: 0/12
Add to Cart
Pricing
Full Rendering – westhomeplanners.com
MAIN Plan – westhomeplanners.com
BASEMENT Plan – westhomeplanners.com
REAR Elevation – westhomeplanners.com
LEFT Elevation – westhomeplanners.com
RIGHT Elevation – westhomeplanners.com
[Back to Search Results]

833–493–0942




