Plan No.535591
Secluded Master Suite
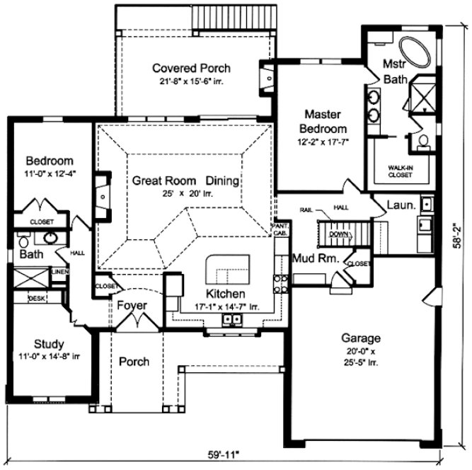
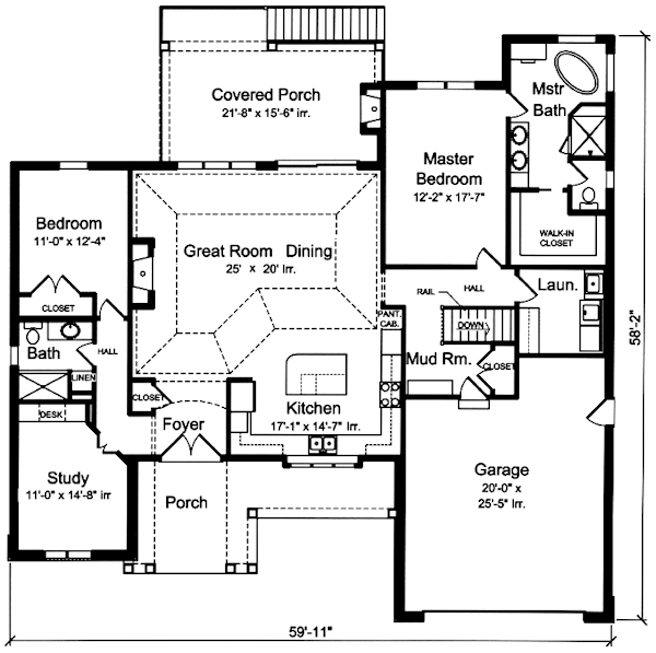
Split bedrooms, high ceilings, open floor plan and gas fireplace combine to offer a home that is great for everyday living, an empty nester with frequent guests or a vacation get-away. The front study easily converts to a 3rd bedroom if desired. The large island with seating anchors the spacious kitchen and triple windows above the sink offer an infusion of light and a great view to the front yard. The master suite showcases a free standing tub, shower enclosure, commode room, double bowl vanity and spacious walk-in closet. A covered front porch and covered rear deck offer outdoor enjoyment and the walk-out basement foundation makes this perfect for a sloped lot.
Specifications
Total 1955 sq ft
- Main: 1955
- Second: 0
- Third: 0
- Loft/Bonus: 0
- Basement: 1955
- Garage: 463
Rooms
- Beds: 3
- Baths: 1
- 1/2 Bath: 0
- 3/4 Bath: 1
Ceiling Height
- Main: 9'0
- Second:
- Third:
- Loft/Bonus:
- Basement:
- Garage:
Details
- Exterior Walls: 2x4
- Garage Type: doubleGarage
- Width: 59'11
- Depth: 58'2
Roof
- Max Ridge Height: 25'0
- Comments: (Main Floor to Peak)
- Primary Pitch: 8/12
- Secondary Pitch: 10/12
Add to Cart
Pricing
– westhomeplanners.com
– westhomeplanners.com
– westhomeplanners.com
– westhomeplanners.com
– westhomeplanners.com
– westhomeplanners.com
[Back to Search Results]

833–493–0942




