Plan No.630481
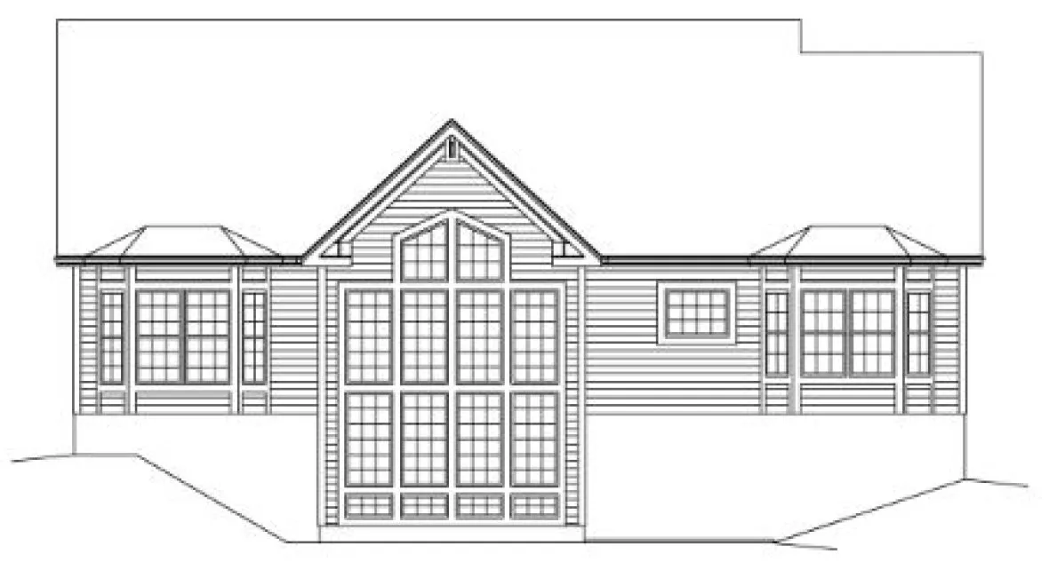
Stunning Vaulted Atrium
This Traditional Ranch Home has 3 bedrooms and 2 full baths. The centrally located vaulted great room is drenched in sunlight from a vaulted atrium. The kitchen's wrap-around counter with seating for six merges nicely with the open floor plan of the great room and bayed breakfast area. A private formal dining room is the ideal place for more intimate gatherings when entertaining. The master bedroom is graced with a sunny bay window and its own private bath. Plus, all of the bedrooms are placed near each other for added convenience. The Basement floor plan shows just the finished area of 260 sq. ft.
Specifications
Total 1840 sq ft
- Main: 1840
- Second: 0
- Third: 0
- Loft/Bonus: 0
- Basement: 1840
- Garage: 0
Rooms
- Beds: 3
- Baths: 2
- 1/2 Bath: 0
- 3/4 Bath: 0
Ceiling Height
- Main:
- Second:
- Third:
- Loft/Bonus:
- Basement:
- Garage:
Details
- Exterior Walls: 2x4
- Garage Type: doubleGarage
- Width: 56'8
- Depth: 59'0
Roof
- Max Ridge Height:
- Comments: ()
- Primary Pitch: 0/12
- Secondary Pitch: 0/12
Add to Cart
Pricing
– westhomeplanners.com
– westhomeplanners.com
– westhomeplanners.com
– westhomeplanners.com
– westhomeplanners.com
– westhomeplanners.com
[Back to Search Results]

833–493–0942




