Plan No.144533
Trendy Farmhouse Design
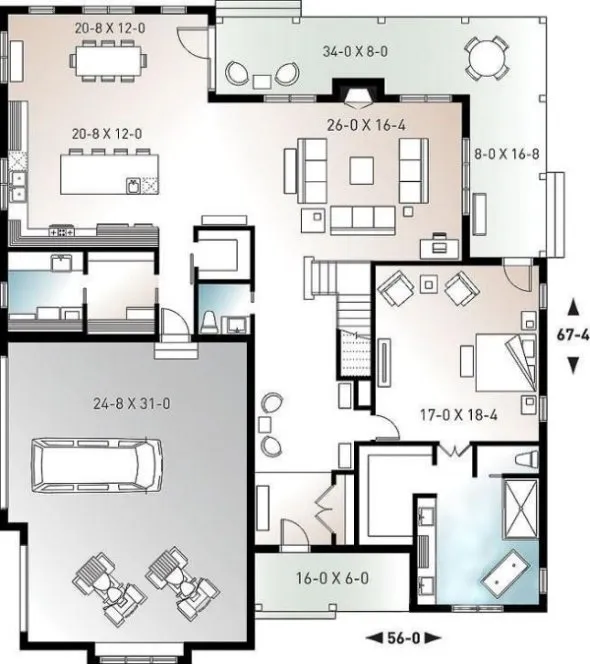
A very trendy white farmhouse design featuring a 9' ceiling on the main floor, a 14' ceiling in the dining area, and an 18' plus ceiling in the living room. The main floor Master Suite has a sitting area, a private master bathroom and walk-in closet. The large Kitchen includes an island, wine cellar (under the stairs) and a pantry. A good-sized Laundry room and a butler's pantry is handy to the kitchen. An L-shaped covered terrace, has access from the Master Suite and Dining area. A Guest suite is located on the second floor.
Specifications
Total 3354 sq ft
- Main: 2240
- Second: 1114
- Third: 0
- Loft/Bonus: 0
- Basement: 0
- Garage: 800
Rooms
- Beds: 4
- Baths: 1
- 1/2 Bath: 1
- 3/4 Bath: 2
Ceiling Height
- Main:
- Second:
- Third:
- Loft/Bonus:
- Basement:
- Garage:
Details
- Exterior Walls: 2x6
- Garage Type: tripleGarage
- Width: 56'0
- Depth: 67'4
Roof
- Max Ridge Height: 32'0
- Comments: (Main Floor to Peak)
- Primary Pitch: 0/12
- Secondary Pitch: 0/12
Add to Cart
Pricing
– westhomeplanners.com
– westhomeplanners.com
– westhomeplanners.com
– westhomeplanners.com
[Back to Search Results]

833–493–0942


