Plan No.145802
Economical Duplex
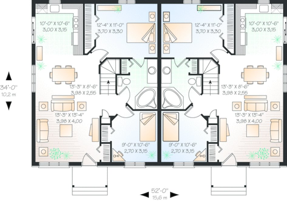
Each unit is 884 sq.ft. and features on the main level a family room, dining room, kitchen / dinette, two bedrooms, and a bathroom. The brick facade offers a touch of class. Side patio doors permit more privacy for each unit's patio.
Specifications
Total 1836 sq ft
- Main: 1836
- Second: 0
- Third: 0
- Loft/Bonus: 0
- Basement: 0
- Garage: 0
Rooms
- Beds: 4
- Baths: 2
- 1/2 Bath: 0
- 3/4 Bath: 0
Ceiling Height
- Main:
- Second:
- Third:
- Loft/Bonus:
- Basement:
- Garage:
Details
- Exterior Walls: 2x6
- Garage Type:
- Width: 52'0
- Depth: 34'0
Roof
- Max Ridge Height: 19'8
- Comments: (Main Floor to Peak)
- Primary Pitch: 0/12
- Secondary Pitch: 0/12
Add to Cart
Pricing
– westhomeplanners.com
– westhomeplanners.com
– westhomeplanners.com
Modified Exterior Finish – westhomeplanners.com
Master Suite – westhomeplanners.com
Family Living Area – westhomeplanners.com
– westhomeplanners.com
[Back to Search Results]

833–493–0942





