Plan No.234222
The Main & Upper Floors total 1224 sq. ft. The finished lower level is 682 sq. ft. and the unfinished basement is 620 sq. ft.
Specifications
Total 1224 sq ft
- Main: 1224
- Second: 0
- Third: 0
- Loft/Bonus: 0
- Basement: 520
- Garage: 0
Rooms
- Beds: 3
- Baths: 2
- 1/2 Bath: 0
- 3/4 Bath: 0
Ceiling Height
- Main: 8'0
- Second:
- Third:
- Loft/Bonus:
- Basement: 8'0
- Garage:
Details
- Exterior Walls: 2x6
- Garage Type:
- Width: 42'0
- Depth: 32'0
Roof
- Max Ridge Height: 22'0
- Comments: (Main Floor to Peak)
- Primary Pitch: 8/12
- Secondary Pitch: 0/12
Add to Cart
Pricing
Full Rendering – westhomeplanners.com
MAIN Plan – westhomeplanners.com
BASEMENT Plan – westhomeplanners.com
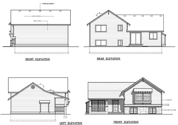
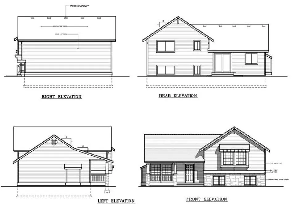
Elevations – westhomeplanners.com
[Back to Search Results]

833–493–0942


