Plan No.311674
Beautiful Curb Appeal
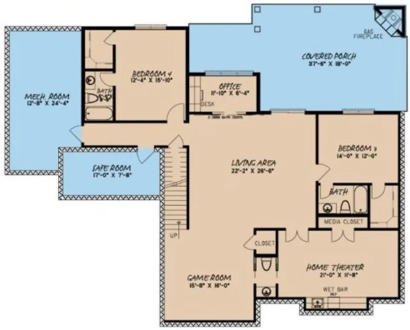
Beautiful curb appeal and a finished basement are just a few of the amazing features in this stunning house plan. The mixture of stone, brick and shake siding is complemented by wood shutters and a stately truss entry. The open floor plan of this home is perfect for family time or entertaining and the large dining room is perfect for holiday meals spent together. The master suite is privately tucked away on the left side of the home and has direct access to the laundry room for added convenience. One other bedroom is located on the main floor making it the perfect guest room. Head down to the basement and you'll find a living area/game room, home theater, 2 additional bedrooms and bathrooms, an office and cover porch with gas fireplace.
Specifications
Total 4761 sq ft
- Main: 2436
- Second: 0
- Third: 0
- Loft/Bonus: 0
- Basement: 2325
- Garage: 1405
Rooms
- Beds: 4
- Baths: 4
- 1/2 Bath: 2
- 3/4 Bath: 0
Ceiling Height
- Main: 10'0
- Second:
- Third:
- Loft/Bonus:
- Basement: 10'0
- Garage:
Details
- Exterior Walls: 2x4
- Garage Type: tripleGarage
- Width: 83'10
- Depth: 63'9
Roof
- Max Ridge Height: 38'0
- Comments: (Main Floor to Peak)
- Primary Pitch: 12/12
- Secondary Pitch: 0/12
Add to Cart
Pricing
– westhomeplanners.com
– westhomeplanners.com
– westhomeplanners.com
– westhomeplanners.com
[Back to Search Results]

833–493–0942


