Plan No.316552
Beautiful Traditional Design
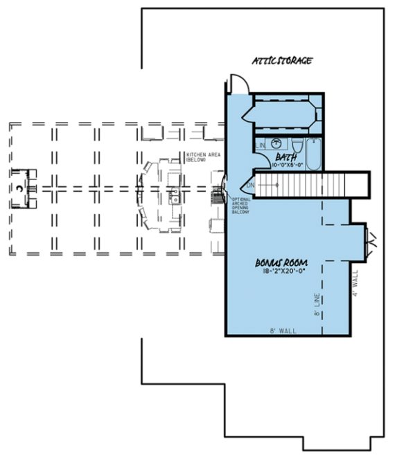
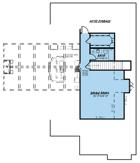
Beautiful traditional design is complimented by rustic touches in this beautiful house floor plan. Stepping into the foyer you will be led into the open living space shared by the Great Room and Kitchen. The Kitchen displays a large island as well as a coffee bar and walk-in pantry. Privately tucked away in the back right corner is the large Master Suite as complete with a walk-in closet and a spacious Master Bath. On this side of the home you'll find the laundry room as well as a half bath for guests. On the left side of the home are Bedrooms 2,3 and 4 each with a walk in closet, and a hall bath with private access from Bedroom 4. Above the 3 car garage is an optional bonus room with its own walk-in closet and full bath. You certainly can't forget about the Outdoor Living area complete with an outdoor kitchen and fireplace.
Specifications
Total 2556 sq ft
- Main: 2556
- Second: 0
- Third: 0
- Loft/Bonus: 601
- Basement: 0
- Garage: 0
Rooms
- Beds: 4
- Baths: 2
- 1/2 Bath: 1
- 3/4 Bath: 0
Ceiling Height
- Main: 9'0
- Second:
- Third:
- Loft/Bonus: 8'0
- Basement:
- Garage:
Details
- Exterior Walls: 2x4
- Garage Type: tripleGarage
- Width: 72'0
- Depth: 72'0
Roof
- Max Ridge Height: 35'0
- Comments: (Main Floor to Peak)
- Primary Pitch: 12/12
- Secondary Pitch: 12/12

833–493–0942



