Plan No.432691
Oversized Garage & Shop
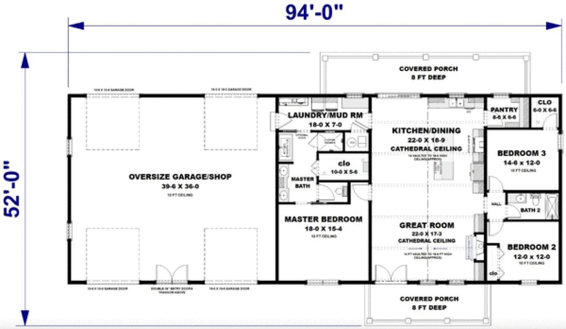
This stunning barndominium house plan features 3 bedrooms, 2 bathrooms, and an open floor layout within 1,962 heated square feet. It includes an oversized garage/shop with four garage bays and double entry doors. The extravagant Great Room and Kitchen is accessible from the 8-foot-deep covered front porch. The Great Room and Kitchen ceilings soar from 14’ to 18' 6” high, featuring cathedral ceilings. Multiple windows at the front and rear of the home allow natural light to flood into these spaces. The Great Room boasts a ventless gas fireplace flanked by cabinets for storage. The Kitchen features a large island with seating, a walk-in pantry, and upper and lower cabinets for efficient and organized storage. The Master Bedroom is generously sized. Its bathroom features double vanities with a storage cabinet between them, a private toilet, a free-standing tub, and a custom shower, with a walk-in closet conveniently located within the bathroom. The Laundry Room can be accessed through an optional door from the Master Bathroom. The other two bedrooms and a bathroom are situated on the opposite side of the house, with Bedroom 3 offering a walk-in closet. The oversized garage/shop can be accessed from the Mudroom and comprises four garage bays, along with a double-entry door positioned in the middle of the front two bays. This barndominium plan is exquisite and boasts numerous unique qualities.
Specifications
Total 1962 sq ft
- Main: 1962
- Second: 0
- Third: 0
- Loft/Bonus: 0
- Basement: 0
- Garage: 1422
Rooms
- Beds: 3
- Baths: 2
- 1/2 Bath: 0
- 3/4 Bath: 0
Ceiling Height
- Main: 10'0-18'6
- Second:
- Third:
- Loft/Bonus:
- Basement:
- Garage: 12'0
Details
- Exterior Walls: 2x6
- Garage Type: 4 Car Garage
- Width: 94'0
- Depth: 52'0
Roof
- Max Ridge Height: 24'8
- Comments: (Main Floor to Peak)
- Primary Pitch: 8/12
- Secondary Pitch: 0/12

833–493–0942











