Plan No.696303
Specifications
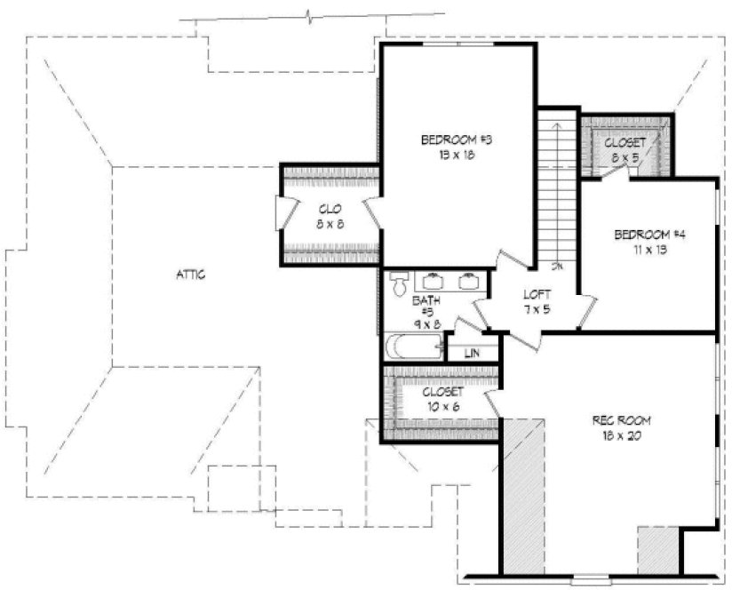
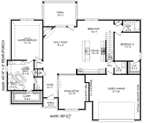
Total 3036 sq ft
- Main: 1932
- Second: 1104
- Third: 0
- Loft/Bonus: 0
- Basement: 0
- Garage: 481
Rooms
- Beds: 4
- Baths: 3
- 1/2 Bath: 0
- 3/4 Bath: 0
Ceiling Height
- Main: 9'0
- Second: 8'0
- Third:
- Loft/Bonus:
- Basement:
- Garage:
Details
- Exterior Walls: 2x4
- Garage Type: doubleGarage
- Width: 60'3
- Depth: 53'9
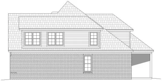
Roof
- Max Ridge Height: 28'5
- Comments: (Main Floor to Peak)
- Primary Pitch: 9/12
- Secondary Pitch: 0/12
Add to Cart
Pricing
– westhomeplanners.com
– westhomeplanners.com
– westhomeplanners.com
Front Photo – westhomeplanners.com
Front Photo 2 – westhomeplanners.com
– westhomeplanners.com
– westhomeplanners.com
– westhomeplanners.com
FRONT Elevation – westhomeplanners.com
[Back to Search Results]

833–493–0942







