Plan No.210512
Charming Front Porch
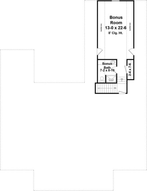
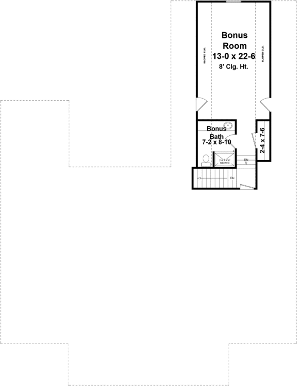
This modern farmhouse plan welcomes you with a charming front porch. In entering the front door, you immediately feel the openness of the great room, kitchen, and dining area. The vaulted ceilings and fireplace in the great room add to that open, inviting feeling. The kitchen features a prep sink on the island, as well as an eating bar. Also, included off of the dining area is a large walk in pantry and spacious laundry room. The split floor plan allows a nice escape to the master suite with generous master bath and his and hers walk-in closets. Two other bedrooms on the left side of the house have walk in closets and share a spacious bathroom with lots of storage. Stairs lead up to the bonus room and bonus bath accommodating future growth. The back covered porch provides an outdoor kitchen, perfect for outdoor family nights. Please note that the Bonus Room area is not included in the finished square footage.
Specifications
Total 2149 sq ft
- Main: 2149
- Second: 0
- Third: 0
- Loft/Bonus: 429
- Basement: 0
- Garage: 732
Rooms
- Beds: 3
- Baths: 2
- 1/2 Bath: 1
- 3/4 Bath: 0
Ceiling Height
- Main: 9'0
- Second:
- Third:
- Loft/Bonus: 8'0
- Basement:
- Garage:
Details
- Exterior Walls: 2x4
- Garage Type: 2 Car Garage
- Width: 57'0
- Depth: 74'0
Roof
- Max Ridge Height:
- Comments: ()
- Primary Pitch: 0/12
- Secondary Pitch: 0/12

833–493–0942



