Plan No.752672
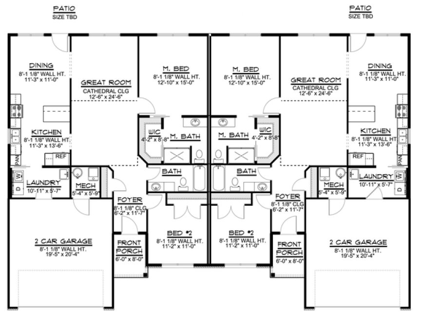
UNIT 1 (Left) - 1381 sq. ft., 2 Bedrooms & 2 Baths, 2 Car Garage 413 sq. ft. and a Porch of 100 sq. ft. UNIT 2 (Right) - 1381 sq. ft., 2 Bedrooms & 2 Baths, 2 Car Garage 413 sq. ft. and a Porch of 100 sq. ft.
Specifications
Total 2762 sq ft
- Main: 2762
- Second: 0
- Third: 0
- Loft/Bonus: 0
- Basement: 0
- Garage: 826
Rooms
- Beds: 4
- Baths: 4
- 1/2 Bath: 0
- 3/4 Bath: 0
Ceiling Height
- Main: 8'0
- Second:
- Third:
- Loft/Bonus:
- Basement:
- Garage:
Details
- Exterior Walls: 2x6
- Garage Type: 4 Car Garage
- Width: 76'0
- Depth: 52'0
Roof
- Max Ridge Height: 19'7
- Comments: (Main Floor to Peak)
- Primary Pitch: 6/12
- Secondary Pitch: 0/12
Add to Cart
Pricing
– westhomeplanners.com
– westhomeplanners.com
Front & Right – westhomeplanners.com
Rear & Right – westhomeplanners.com
Front & Left – westhomeplanners.com
Alt. Exterior Finish – westhomeplanners.com
Front - Right Unit Closeup – westhomeplanners.com
Rear - Right Unit Closeup – westhomeplanners.com
– westhomeplanners.com
– westhomeplanners.com
FRONT Elevation – westhomeplanners.com
[Back to Search Results]

833–493–0942









