Plan No.735063
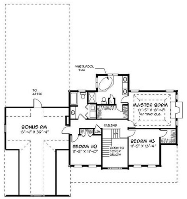
Additional Notes: 1st floor Main House = 1,221 sq. ft., 1st floor In-law Suite = 768 sq. ft. Second floor main house = 1,010 sq. ft., Bonus room = 617 sq. ft. for a total sq. footage of 3,616
Specifications
Total 3616 sq ft
- Main: 1989
- Second: 1010
- Third: 0
- Loft/Bonus: 617
- Basement: 1300
- Garage: 792
Rooms
- Beds: 4
- Baths: 3
- 1/2 Bath: 1
- 3/4 Bath: 0
Ceiling Height
- Main: 9'0
- Second: 8'0
- Third:
- Loft/Bonus:
- Basement:
- Garage:
Details
- Exterior Walls: 2x6
- Garage Type: tripleGarage
- Width: 66'0
- Depth: 71'0
Roof
- Max Ridge Height: 33'0
- Comments: (Main Floor to Peak)
- Primary Pitch: 10/12
- Secondary Pitch: 0/12
Add to Cart
Pricing
– westhomeplanners.com
– westhomeplanners.com
– westhomeplanners.com
Front Photo – westhomeplanners.com
– westhomeplanners.com
[Back to Search Results]

833–493–0942



