Plan No.182071
Triple Arched Porch
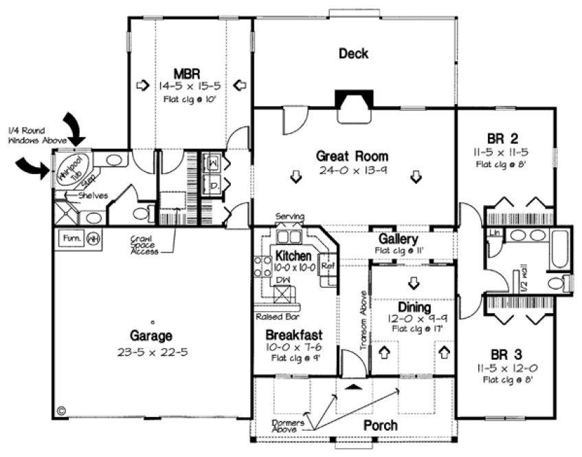
Subtle arches tastefully adorn the covered front porch, enhancing this home’s sense of “welcome.” Inside, a long foyer opens to the dining room, with a transom topping the entry. The gallery features recessed areas for displaying collectibles. Steps away, the kitchen has serving access to the great-room and the breakfast area via bars. Behind the garage, the secluded master suite is loaded with amenities, including a raised whirlpool tub flanked by round windows. In the right wing, the two secondary bedrooms share a full bath, embellished with a half wall.
Specifications
Total 1702 sq ft
- Main: 1702
- Second: 0
- Third: 0
- Loft/Bonus: 0
- Basement: 0
- Garage: 540
Rooms
- Beds: 3
- Baths: 2
- 1/2 Bath: 0
- 3/4 Bath: 0
Ceiling Height
- Main: 8'0
- Second:
- Third:
- Loft/Bonus:
- Basement:
- Garage:
Details
- Exterior Walls: 2x4
- Garage Type: doubleGarage
- Width: 62'0
- Depth: 50'4
Roof
- Max Ridge Height: 24'6
- Comments: (Main Floor to Peak)
- Primary Pitch: 8/12
- Secondary Pitch: 0/12
Add to Cart
Pricing
– westhomeplanners.com
– westhomeplanners.com
[Back to Search Results]

833–493–0942
