Plan No.185581
The Good Life
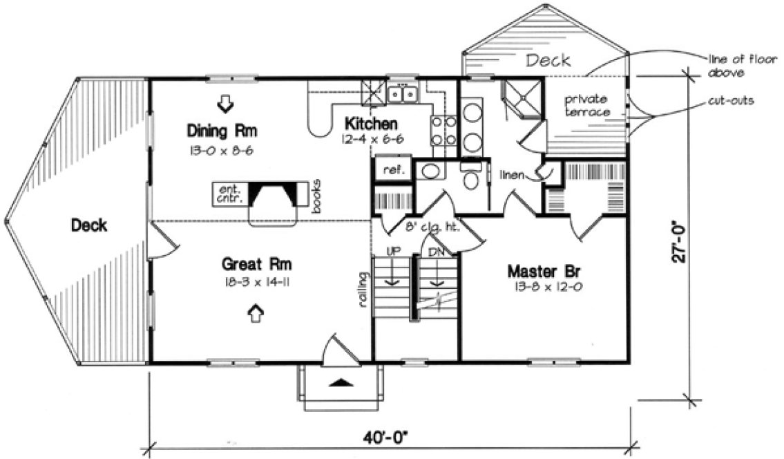
A large deck area and huge windows help this home’s owner to enjoy the surroundings effortlessly. Inside, the center fireplace in the great room enhances the area with warmth and atmosphere. The dining room adjoins the great room and the kitchen. A peninsula counter extends the work space and offers a snack bar arrangement. The master suite includes a walk-in closet, a double vanity and a shower. There is direct access to a private terrace from the bath area. Two additional roomy bedrooms on the second floor share the use of a full double vanity bath. A loft area overlooks the great room below. The lower level includes a finished recreation room of 426 sq. ft., a mechanical room and unfinished storage space of 487 sq. ft. for a total basement area of 913 sq. ft..
Specifications
Total 1855 sq ft
- Main: 913
- Second: 516
- Third: 0
- Loft/Bonus: 0
- Basement: 487
- Garage: 0
Rooms
- Beds: 3
- Baths: 2
- 1/2 Bath: 1
- 3/4 Bath: 0
Ceiling Height
- Main: 8'0
- Second: 8'0
- Third:
- Loft/Bonus:
- Basement: 8'0
- Garage:
Details
- Exterior Walls: 2x4
- Garage Type:
- Width: 24'0
- Depth: 40'0
Roof
- Max Ridge Height: 24'0
- Comments: (Main Floor to Peak)
- Primary Pitch: 12/12
- Secondary Pitch: 6/12

833–493–0942



