Plan No.188270
Little Cabin in the Woods
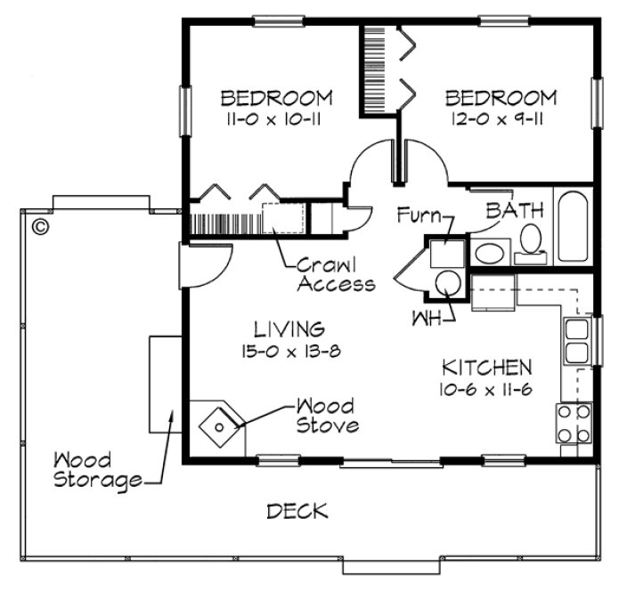
This cute little cabin in the woods is a respite from the hectic pace of your life. Take off for the weekend and relax here on your deck. In the winter a roaring fire in the wood stove will keep you warm and cozy. Store firewood in the convenient storage bin on the deck. The large living room has double doors that open out to the deck. The kitchen contains ample counter and cabinet space, a double sink, a 32” refrigerator, and a 30” oven/range. A full bath serves the two large bedrooms. A mechanical room houses the water heater and furnace. The crawl space is accessed through a bedroom closet. This little cabin will reward you handsomely throughout the years that you own it.
Specifications
Total 728 sq ft
- Main: 728
- Second: 0
- Third: 0
- Loft/Bonus: 0
- Basement: 0
- Garage: 0
Rooms
- Beds: 2
- Baths: 1
- 1/2 Bath: 0
- 3/4 Bath: 0
Ceiling Height
- Main: 8'0
- Second:
- Third:
- Loft/Bonus:
- Basement:
- Garage:
Details
- Exterior Walls: 2x6
- Garage Type:
- Width: 26'0
- Depth: 28'0
Roof
- Max Ridge Height: 14'6
- Comments: (Main Floor to Peak)
- Primary Pitch: 4/12
- Secondary Pitch: 0/12
Add to Cart
Pricing
– westhomeplanners.com
– westhomeplanners.com
[Back to Search Results]

833–493–0942
