Plan No.737872
Vaulted Ceilings
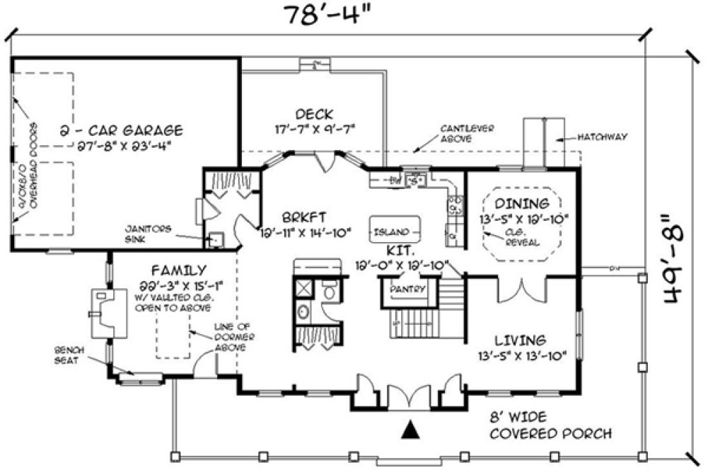
The whole first floor with the exception of the family room is 9'-0" The family room starts at 9'-0", but because of the vaulted ceiling, it rises up to the second floor level ceiling, which is 18'-0" above the first floor. The second floor is all 8'-0" except for the master bedroom and master bath having raised ceilings up to 10'-0" in the middle of the rooms. The ceilings in these rooms slope up to the 10'-0" point starting from the 8'-0" plate heights. in both rooms.
Specifications
Total 2787 sq ft
- Main: 1488
- Second: 1299
- Third: 0
- Loft/Bonus: 0
- Basement: 0
- Garage: 0
Rooms
- Beds: 4
- Baths: 2
- 1/2 Bath: 1
- 3/4 Bath: 0
Ceiling Height
- Main: 9'0
- Second: 8'0
- Third:
- Loft/Bonus:
- Basement:
- Garage:
Details
- Exterior Walls: 2x6
- Garage Type: doubleGarage
- Width: 77'0
- Depth: 48'0
Roof
- Max Ridge Height: 31'0
- Comments: (Main Floor to Peak)
- Primary Pitch: 8/12
- Secondary Pitch: 0/12
Add to Cart
Pricing
– westhomeplanners.com
– westhomeplanners.com
– westhomeplanners.com
– westhomeplanners.com
– westhomeplanners.com
[Back to Search Results]

833–493–0942



