Plan No.740831
A Family Country Ranch House
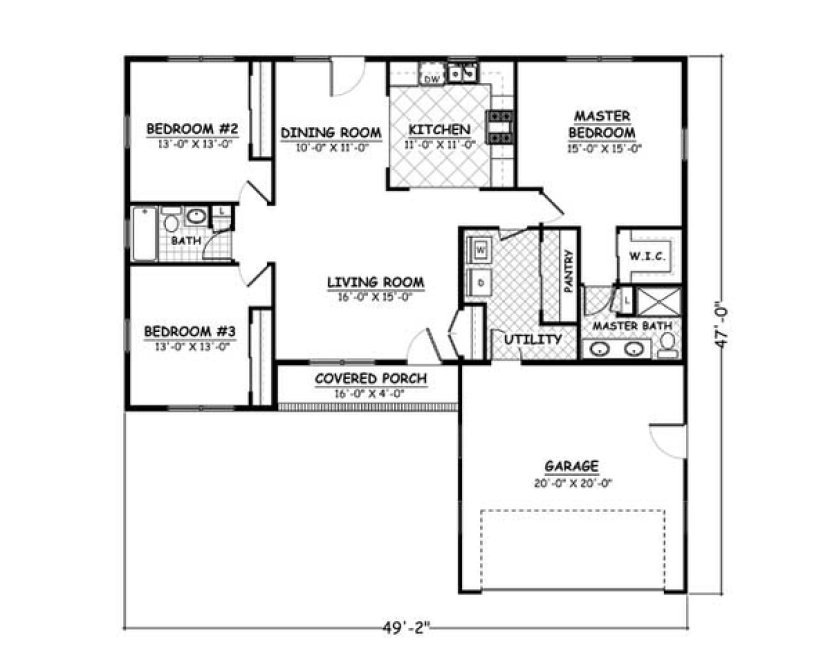
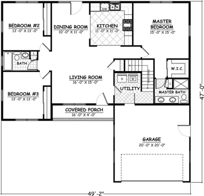
This ranch style house is ideal if you're looking for a split-bedroom design which offers privacy for the Master Suite. You’ll appreciate the layout of this home, the Kitchen is a well designed space that features a double sink and both a range and a wall oven, convedniently a short distance away is a large pantry. The wide arched openings add to the spacious feeling of this home. Traffic flows smoothly in and out of the kitchen, and meal preparation can be done with ease without getting in each others way. Parents with young ones will appreciate the layout because they can keep an eye on the kids from any part of the living space.
Specifications
Total 1380 sq ft
- Main: 1380
- Second: 0
- Third: 0
- Loft/Bonus: 0
- Basement: 0
- Garage: 400
Rooms
- Beds: 3
- Baths: 1
- 1/2 Bath: 0
- 3/4 Bath: 1
Ceiling Height
- Main: 8'0
- Second:
- Third:
- Loft/Bonus:
- Basement:
- Garage:
Details
- Exterior Walls: 2x6
- Garage Type: 2 Car Garage
- Width: 49'2
- Depth: 47'0
Roof
- Max Ridge Height: 21'0
- Comments: (Main Floor to Peak)
- Primary Pitch: 8/12
- Secondary Pitch: 0/12
Add to Cart
Pricing
– westhomeplanners.com
– westhomeplanners.com
Opt. Basement Stairs – westhomeplanners.com
– westhomeplanners.com
– westhomeplanners.com
– westhomeplanners.com
Optional Finish – westhomeplanners.com
Color Floor Plan – westhomeplanners.com
[Back to Search Results]

833–493–0942






