Plan No.711922
Traditional House Plan has Attractive Craftsman Details
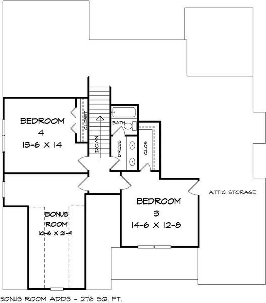
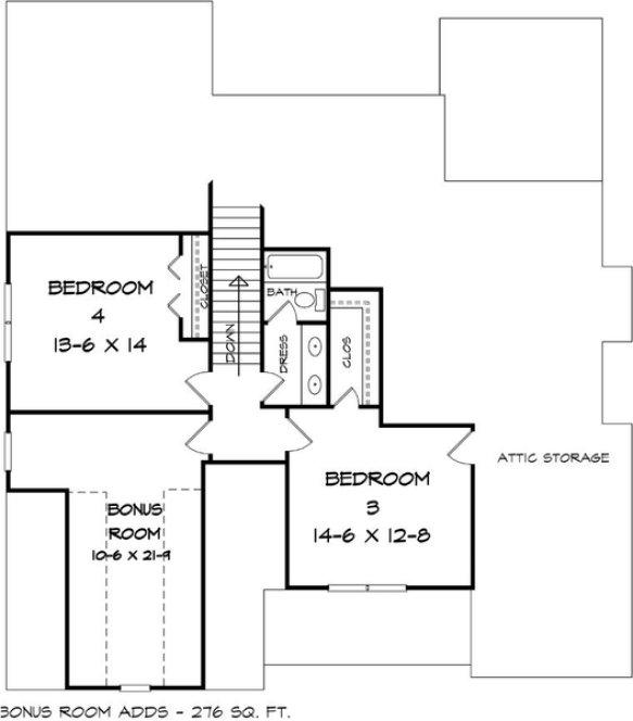
Craftsman like details adorn this traditional house plan. Features include; 4 beds, 3 baths, arts and crafts details, formal dining at entry, master and bedroom 2 on the first floor, drop zone, breakfast nook, kitchen island bar top, vaulted ceilings, 2367 square feet, a bonus room, two beds & bath up, covered terrace and two car forward facing garage. Please note, the Bonus Room area is not included in the total square footage.
Specifications
Total 2367 sq ft
- Main: 1764
- Second: 603
- Third: 0
- Loft/Bonus: 276
- Basement: 0
- Garage: 0
Rooms
- Beds: 4
- Baths: 3
- 1/2 Bath: 0
- 3/4 Bath: 0
Ceiling Height
- Main: 9'0
- Second: 8'0
- Third:
- Loft/Bonus:
- Basement:
- Garage:
Details
- Exterior Walls: 2x4
- Garage Type: doubleGarage
- Width: 50'0
- Depth: 55'0
Roof
- Max Ridge Height: 27'3
- Comments: (Main Floor to Peak)
- Primary Pitch: 12/12
- Secondary Pitch: 0/12
Add to Cart
Pricing
Full Rendering – westhomeplanners.com
MAIN Plan – westhomeplanners.com
SECOND Plan – westhomeplanners.com
REAR Elevation – westhomeplanners.com
Elevations – westhomeplanners.com
[Back to Search Results]

833–493–0942



