Plan No.314242
Columns & Dormers Add Charm
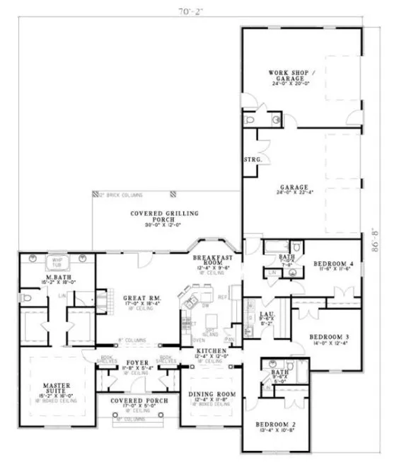
Columns and dormers add to the charm of this four bedroom home. Bookshelves flank the foyer for displaying family photos or other treasured items. Columned entries enhance the great and dining rooms. The well-planned kitchen packed with amenities will definitely be a conversation starter. This design gives the master suite the privacy of its own side of the home while the other three bedrooms are tucked away on the other side. With the inclusion of the covered grilling porch and workshop in the list of amenities, everyone is sure to find a favorite.
Specifications
Total 2424 sq ft
- Main: 2424
- Second: 0
- Third: 0
- Loft/Bonus: 0
- Basement: 0
- Garage: 1060
Rooms
- Beds: 4
- Baths: 3
- 1/2 Bath: 0
- 3/4 Bath: 0
Ceiling Height
- Main: 9'0
- Second:
- Third:
- Loft/Bonus:
- Basement:
- Garage:
Details
- Exterior Walls: 2x4
- Garage Type: tripleGarage
- Width: 70'2
- Depth: 86'8
Roof
- Max Ridge Height: 21'0
- Comments: (Main Floor to Peak)
- Primary Pitch: 8/12
- Secondary Pitch: 0/12
Add to Cart
Pricing
– westhomeplanners.com
– westhomeplanners.com
[Back to Search Results]

833–493–0942
