Plan No.310833
Perfect Mountain Get-Away
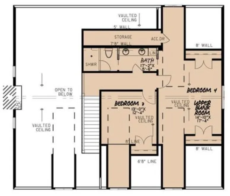
This charming home will make the perfect mountain get away with its rustic design that compliments nature. Step into the Foyer where you can access the Guest Bedroom/Office or head into the Great Room which is complete with a beautiful vaulted ceiling and cozy fireplace. This room flows seamlessly into the dining room and then to to the kitchen making it perfect for the whole family to gather together. This Kitchen has plenty of counter space, an island eat-at bar, and a large walk-in pantry. The Master Suite has sliding patio doors and a spacious Master Bath featuring a freestanding tub, separate vanities, shower with seat, private toilet room and a large walk-in closet. You'll also notice there is a Safe Room through the walk-in closet as well as access to the Laundry Room. A Hunting Room as located by the door leading to the garage. Make your way upstairs and you'll find Bedroom 3, a full bath and Bedroom 4 or the Bunk Room.
Specifications
Total 3380 sq ft
- Main: 2472
- Second: 908
- Third: 0
- Loft/Bonus: 0
- Basement: 0
- Garage: 1634
Rooms
- Beds: 4
- Baths: 3
- 1/2 Bath: 1
- 3/4 Bath: 0
Ceiling Height
- Main: 9'0
- Second: 8'0
- Third:
- Loft/Bonus:
- Basement:
- Garage:
Details
- Exterior Walls: 2x4
- Garage Type: tripleGarage
- Width: 65'2
- Depth: 115'0
Roof
- Max Ridge Height: 26'0
- Comments: (Main Floor to Peak)
- Primary Pitch: 8/12
- Secondary Pitch: 4/12

833–493–0942

