Plan No.639951
Inviting Ranch Home Plan
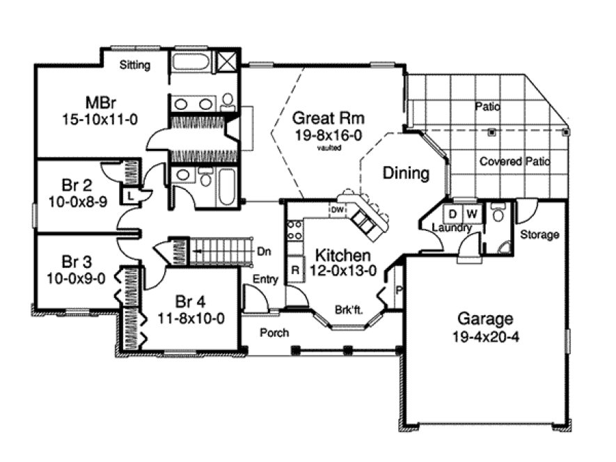
This Ranch Home has 4 bedrooms, 2 full baths and 1 half bath. A spacious entry leads to the great room featuring a vaulted ceiling, fireplace and an octagon-shaped dining area with views to the covered patio. The kitchen enjoys a snack counter open to the dining area, a breakfast area with bay window and a built-in pantry. The lovely master bedroom has a sitting area, large walk-in closet and a luxury bath. The laundry room has a convenient half bath and access to the garage with storage area.
Specifications
Total 1599 sq ft
- Main: 1599
- Second: 0
- Third: 0
- Loft/Bonus: 0
- Basement: 0
- Garage: 0
Rooms
- Beds: 4
- Baths: 2
- 1/2 Bath: 1
- 3/4 Bath: 0
Ceiling Height
- Main:
- Second:
- Third:
- Loft/Bonus:
- Basement:
- Garage:
Details
- Exterior Walls: 2x4
- Garage Type: doubleGarage
- Width: 65'4
- Depth: 46'4
Roof
- Max Ridge Height:
- Comments: ()
- Primary Pitch: 0/12
- Secondary Pitch: 0/12
Add to Cart
Pricing
– westhomeplanners.com
– westhomeplanners.com
– westhomeplanners.com
– westhomeplanners.com
– westhomeplanners.com
[Back to Search Results]

833–493–0942



