Plan No.182842
Executive Accommodations
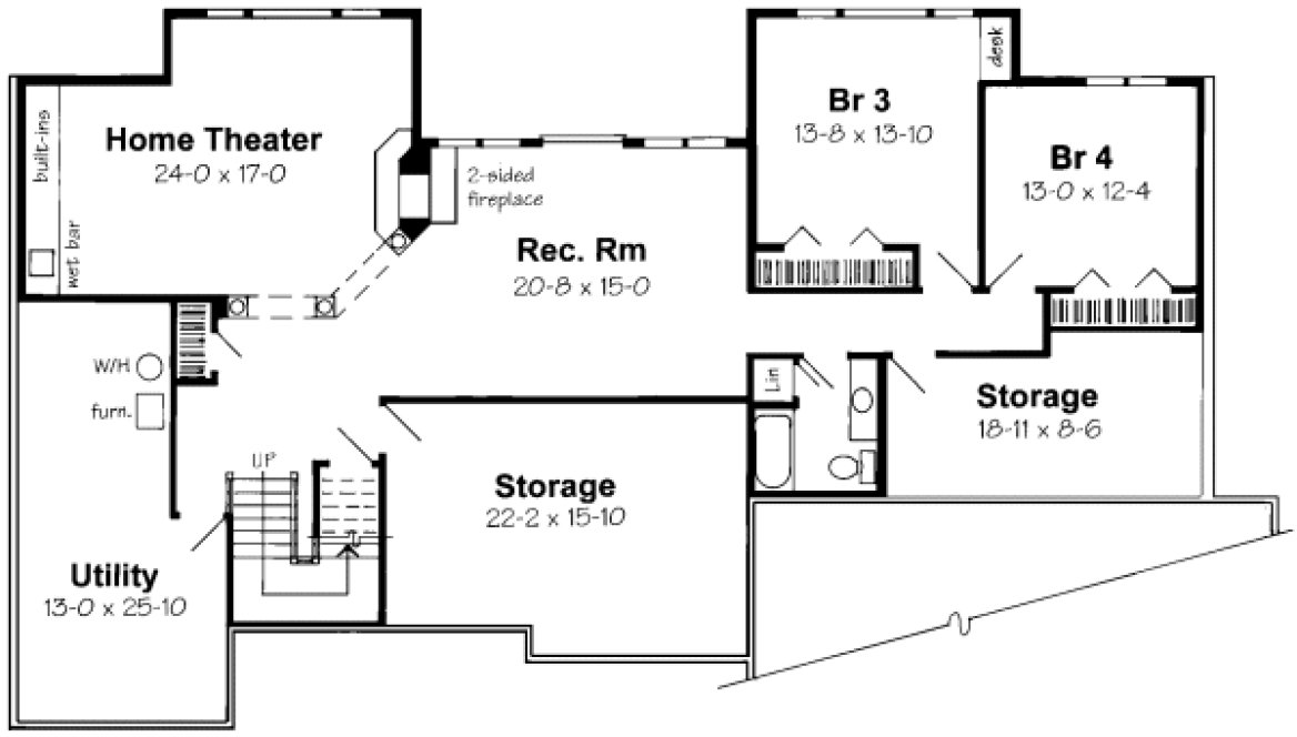
This luxurious home features extensive attention to detail and comfort. A sheltered entrance greets guests and the foyer continues that warm greeting. Columns and a tray ceiling enhance the elegant dining room. The large living room boosts a fireplace and is highly windowed. A cook top island, two pantries, a built-in planning desk and a second angled island with a double sink add to the efficiency of the kitchen. The cozy hearth room includes a three-sided fireplace. Having an open layout between the kitchen, hearth room and the breakfastroom creates the illusion of even more living area. Privacy is assured in the first floor master suite. A large walk-in closet and lavish bath are highlighted in the suite. A convenient study is in close proximity to the master suite. Two additional bedrooms, sharing a full bath, are included on the lower level. The lower level also includes a home theater and a recreation room that shares a two-sided fireplace. Entertaining is made easy in the home theater by a built-in wet bar.
Specifications
Total 4064 sq ft
- Main: 2466
- Second: 0
- Third: 0
- Loft/Bonus: 0
- Basement: 1598
- Garage: 665
Rooms
- Beds: 4
- Baths: 3
- 1/2 Bath: 0
- 3/4 Bath: 0
Ceiling Height
- Main: 9'11
- Second:
- Third:
- Loft/Bonus:
- Basement: 8'6
- Garage: 10'4
Details
- Exterior Walls: 2x6
- Garage Type: tripleGarage
- Width: 78'0
- Depth: 52'4
Roof
- Max Ridge Height: 32'0
- Comments: ()
- Primary Pitch: 8/12
- Secondary Pitch: 0/12

833–493–0942



