Plan No.641991
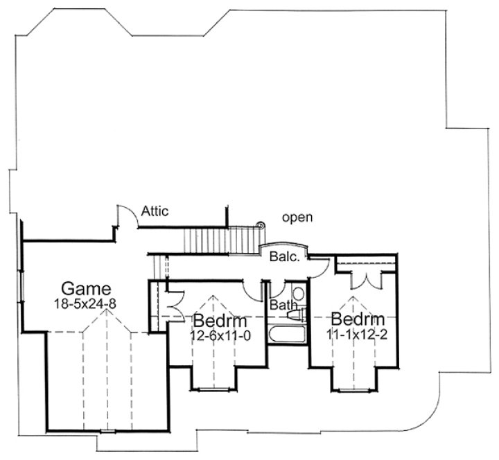
The Second Floor Bonus Area is not included in the total square footage. The plans include both Option A and Option B if you decide to finish this level. This area can be finished in two phases or all at once. To finish the game area over the garage adds 461 sq. ft. To finish the bedrooms adds an additional 476 sq. ft. To finish both phases A & B would total = 937 sq. ft.
Specifications
Total 1991 sq ft
- Main: 1991
- Second: 0
- Third: 0
- Loft/Bonus: 0
- Basement: 0
- Garage: 0
Rooms
- Beds: 3
- Baths: 2
- 1/2 Bath: 1
- 3/4 Bath: 0
Ceiling Height
- Main: 9'0
- Second:
- Third:
- Loft/Bonus:
- Basement:
- Garage:
Details
- Exterior Walls: 2x4
- Garage Type: doubleGarage
- Width: 60'0
- Depth: 58'0
Roof
- Max Ridge Height: 27'0
- Comments: (Main Floor to Peak)
- Primary Pitch: 8/12
- Secondary Pitch: 0/12
Add to Cart
Pricing
– westhomeplanners.com
– westhomeplanners.com
2nd Flr Opt. A unfini – westhomeplanners.com
2nd Flr Opt. B finish – westhomeplanners.com
[Back to Search Results]

833–493–0942


