Plan No.312462
Elegant Architectural Details
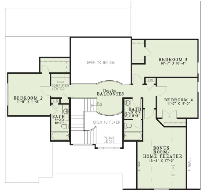
Upon entering the grand foyer of this home you will be overwhelmed with the charm of this design. The expansive great room showcases a fireplace and media center while lending easy access to the kitchen. The master bedroom offers plenty of possibilities, and the master bath is luxuriously equipped with a whirlpool bath, glass shower, and huge walk-in closet. Upstairs, you can revel in the view from either theater balcony before heading into your home theater or tucking the kids into one of the three bedrooms. Please note that the Bonus Area is not included in the total square footage.
Specifications
Total 2642 sq ft
- Main: 1747
- Second: 895
- Third: 0
- Loft/Bonus: 263
- Basement: 0
- Garage: 501
Rooms
- Beds: 4
- Baths: 3
- 1/2 Bath: 1
- 3/4 Bath: 0
Ceiling Height
- Main: 9'0
- Second: 8'0
- Third:
- Loft/Bonus: 8'0
- Basement:
- Garage:
Details
- Exterior Walls: 2x4
- Garage Type: doubleGarage
- Width: 55'0
- Depth: 52'10
Roof
- Max Ridge Height: 34'0
- Comments: (Main Floor to Peak)
- Primary Pitch: 12/12
- Secondary Pitch: 0/12
Add to Cart
Pricing
– westhomeplanners.com
– westhomeplanners.com
– westhomeplanners.com
Builder Modified – westhomeplanners.com
Computer Center – westhomeplanners.com
Great Rm Fireplace – westhomeplanners.com
Foyer Arched Entry – westhomeplanners.com
Staircase – westhomeplanners.com
Staircase – westhomeplanners.com
Foyer Ceiling – westhomeplanners.com
Great Rm Pass-Thru – westhomeplanners.com
Great Room – westhomeplanners.com
Hearth Room – westhomeplanners.com
Kid's Nook – westhomeplanners.com
Kitchen Pass-Thru – westhomeplanners.com
Kitchen – westhomeplanners.com
Master Shower – westhomeplanners.com
Master Bath – westhomeplanners.com
Master Suite – westhomeplanners.com
Master Walk-in Closet – westhomeplanners.com
[Back to Search Results]

833–493–0942


















