Plan No.353861
Large Master Suite
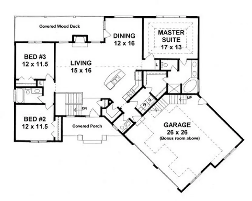
This plan features a large Master suite with walk-thru closet for laundry convenience. The Holiday size Dining room has atrium doors to a covered deck and the Kitchen features a large open bar and a walk-in Pantry. The Garage is oversized with extra storage areas and an 11' x 20' Bonus room above. Use the modify-plan link or contact form to request a basement image for this plan.
Specifications
Total 1683 sq ft
- Main: 1683
- Second: 0
- Third: 0
- Loft/Bonus: 0
- Basement: 1683
- Garage: 0
Rooms
- Beds: 3
- Baths: 2
- 1/2 Bath: 1
- 3/4 Bath: 0
Ceiling Height
- Main: 9'0
- Second:
- Third:
- Loft/Bonus:
- Basement:
- Garage:
Details
- Exterior Walls: 2x4
- Garage Type: 2 Car Garage
- Width: 72'6
- Depth: 56'6
Roof
- Max Ridge Height:
- Comments: ()
- Primary Pitch: 7/12
- Secondary Pitch: 9/12
Add to Cart
Pricing
– westhomeplanners.com
– westhomeplanners.com
– westhomeplanners.com
[Back to Search Results]

833–493–0942

