Plan No.451243
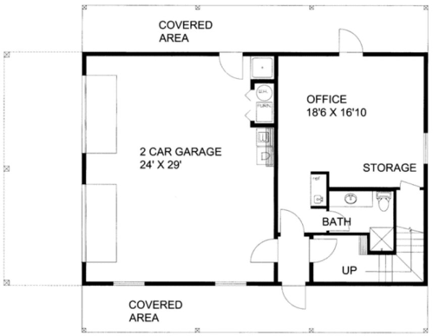
Second Floor Living Area: 1320 sq. ft. Lower Floor Living Area: 581 sq. ft. TOTAL LIVING AREA: 1901 sq. ft. AREA OF TWO CAR GARAGE: 738 sq. ft.
Specifications
Total 2640 sq ft
- Main: 1320
- Second: 1320
- Third: 0
- Loft/Bonus: 0
- Basement: 0
- Garage: 0
Rooms
- Beds: 2
- Baths: 3
- 1/2 Bath: 0
- 3/4 Bath: 0
Ceiling Height
- Main:
- Second: 8'6
- Third:
- Loft/Bonus:
- Basement:
- Garage:
Details
- Exterior Walls: 2x6
- Garage Type:
- Width: 44'0
- Depth: 30'0
Roof
- Max Ridge Height: 30'0
- Comments: (Garage Fl to Peak)
- Primary Pitch: 7/12
- Secondary Pitch: 0/12
Add to Cart
Pricing
– westhomeplanners.com
– westhomeplanners.com
– westhomeplanners.com
Front Photo – westhomeplanners.com
Left Elevation Photo – westhomeplanners.com
Kitchen – westhomeplanners.com
Great Room – westhomeplanners.com
– westhomeplanners.com
– westhomeplanners.com
– westhomeplanners.com
[Back to Search Results]

833–493–0942








