Plan No.406359
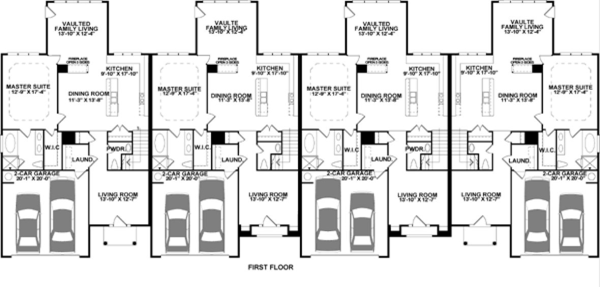
First Floor - Per Unit: 1347 - 1355sq. ft. Second Floor - Per Unit: 1029 - 1037sq. ft. Total Living - Building: 2376 sq. ft. Total Area - Building: 9536 sq. ft. Slab foundation included.
Specifications
Total 9536 sq ft
- Main: 1355
- Second: 1037
- Third: 0
- Loft/Bonus: 0
- Basement: 0
- Garage: 0
Rooms
- Beds: 3
- Baths: 2
- 1/2 Bath: 1
- 3/4 Bath: 0
Ceiling Height
- Main: 9'0
- Second:
- Third:
- Loft/Bonus:
- Basement:
- Garage:
Details
- Exterior Walls: 2x6
- Garage Type:
- Width: 140'8
- Depth: 60'6
Roof
- Max Ridge Height: 26'0
- Comments: (Main Floor to Peak)
- Primary Pitch: 8/12
- Secondary Pitch: 10/12
Add to Cart
Pricing
– westhomeplanners.com
– westhomeplanners.com
– westhomeplanners.com
– westhomeplanners.com
[Back to Search Results]

833–493–0942


