Plan No.715822
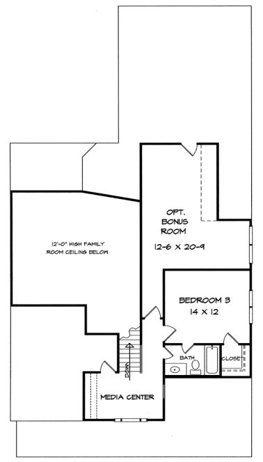
The Bonus Area is not included in the Total Living Area Square Footage.
Specifications
Total 2285 sq ft
- Main: 1879
- Second: 406
- Third: 0
- Loft/Bonus: 348
- Basement: 0
- Garage: 0
Rooms
- Beds: 3
- Baths: 3
- 1/2 Bath: 0
- 3/4 Bath: 0
Ceiling Height
- Main: 9'0
- Second: 8'0
- Third:
- Loft/Bonus:
- Basement:
- Garage:
Details
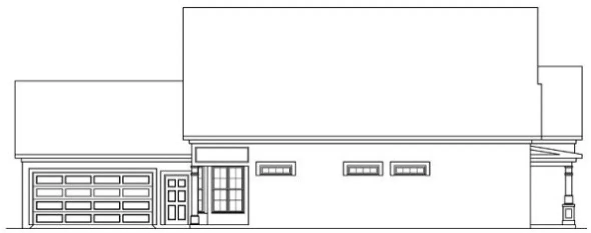
- Exterior Walls: 2x4
- Garage Type: doubleGarage
- Width: 40'0
- Depth: 75'0
Roof
- Max Ridge Height: 30'0
- Comments: (Main Floor to Peak)
- Primary Pitch: 10/12
- Secondary Pitch: 0/12
Add to Cart
Pricing
– westhomeplanners.com
– westhomeplanners.com
– westhomeplanners.com
Alt. Rendering – westhomeplanners.com
– westhomeplanners.com
– westhomeplanners.com
– westhomeplanners.com
[Back to Search Results]

833–493–0942





