Plan No.719893
The Bonus Area is not included in Total Living Area Square Footage.
Specifications
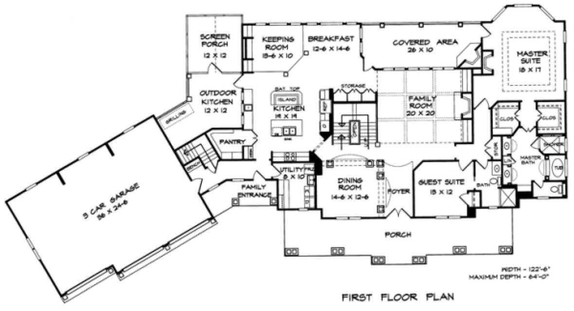
Total 3989 sq ft
- Main: 2800
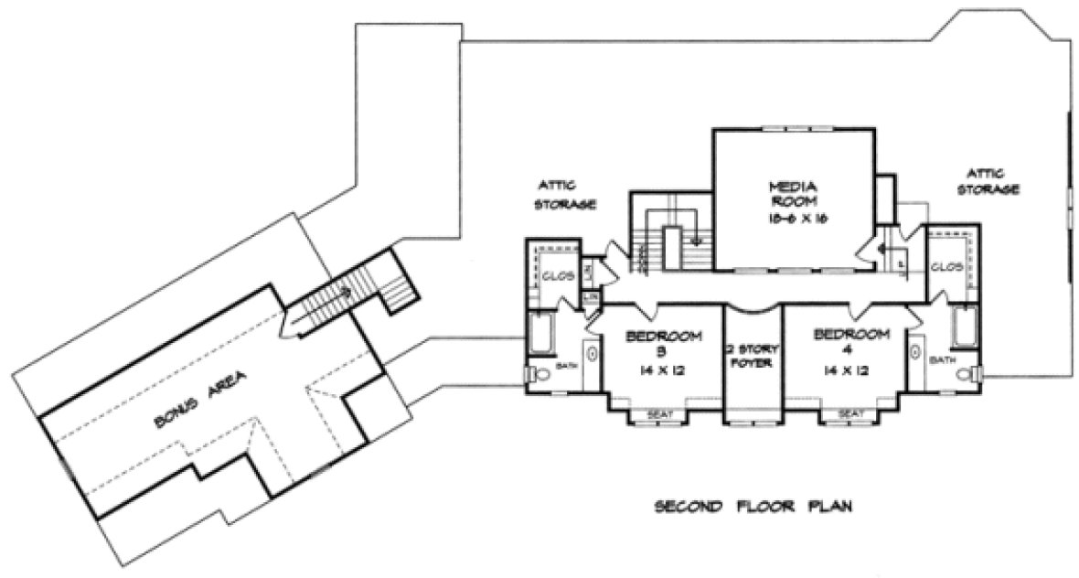
- Second: 1189
- Third: 0
- Loft/Bonus: 675
- Basement: 0
- Garage: 0
Rooms
- Beds: 4
- Baths: 4
- 1/2 Bath: 0
- 3/4 Bath: 0
Ceiling Height
- Main:
- Second:
- Third:
- Loft/Bonus:
- Basement:
- Garage:
Details
- Exterior Walls: 2x4
- Garage Type: tripleGarage
- Width: 123'0
- Depth: 64'0
Roof
- Max Ridge Height:
- Comments: ()
- Primary Pitch: 0/12
- Secondary Pitch: 0/12
Add to Cart
Pricing
– westhomeplanners.com
– westhomeplanners.com
– westhomeplanners.com
– westhomeplanners.com
Dining Room – westhomeplanners.com
Ensuite Bath – westhomeplanners.com
Family Room – westhomeplanners.com
Master Br Sitting Area – westhomeplanners.com
– westhomeplanners.com
[Back to Search Results]

833–493–0942







