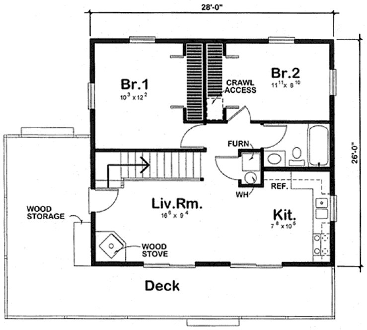
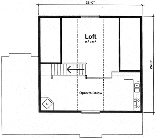
Plan No.180489
Cabin Retreat With Loft
Three Different Sizes: 28' x 26' 30' x 28' 32' x 30'. Perfect for a lake or mountain lot, this 2 bedroom plan with loft offers great spaces in an atractive design.
Specifications
Total 984 sq ft
- Main: 728
- Second: 0
- Third: 0
- Loft/Bonus: 256
- Basement: 0
- Garage: 0
Rooms
- Beds: 2
- Baths: 1
- 1/2 Bath: 0
- 3/4 Bath: 0
Ceiling Height
- Main: 8'0
- Second:
- Third:
- Loft/Bonus:
- Basement:
- Garage:
Details
- Exterior Walls: 2x6
- Garage Type:
- Width: 28'0
- Depth: 26'0
Roof
- Max Ridge Height: 22'6
- Comments: (Main Floor to Peak)
- Primary Pitch: 9/12
- Secondary Pitch: 0/12
Add to Cart
Pricing
– westhomeplanners.com
– westhomeplanners.com
– westhomeplanners.com
[Back to Search Results]

833–493–0942

