Plan No.348002
Garage with Living
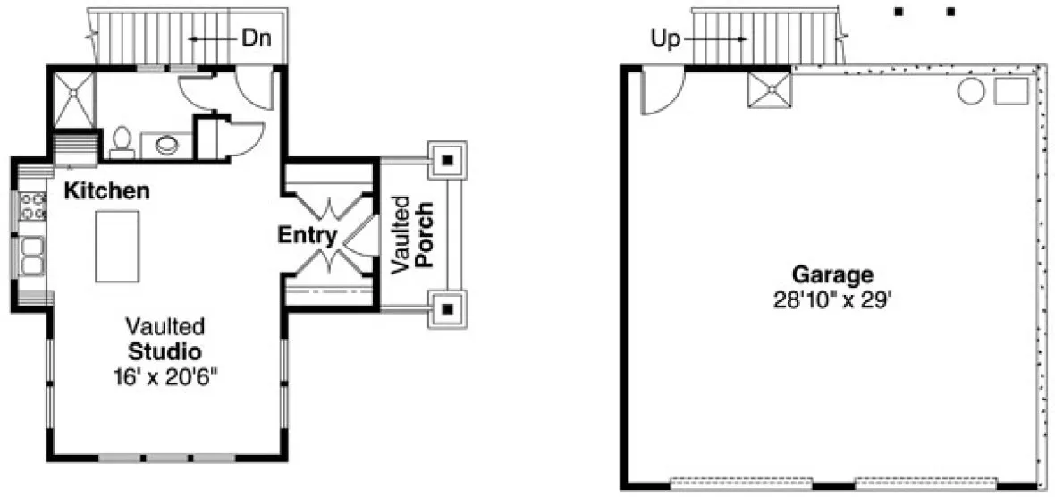
This Craftsman garage plan can park two cars. Both garage doors are 10' wide and 8' tall. The stairs on the outside lead to a vaulted studio with kitchen and full bathroom. *Materials list available. Call 1-800-361-7526 for more information.
Specifications
Total 1455 sq ft
- Main: 880
- Second: 575
- Third: 0
- Loft/Bonus: 0
- Basement: 0
- Garage: 0
Rooms
- Beds: 0
- Baths: 1
- 1/2 Bath: 0
- 3/4 Bath: 0
Ceiling Height
- Main: 9'0
- Second:
- Third:
- Loft/Bonus:
- Basement:
- Garage:
Details
- Exterior Walls: 2x6
- Garage Type:
- Width: 35'0
- Depth: 34'0
Roof
- Max Ridge Height: 25'0
- Comments: (Main Floor to Peak)
- Primary Pitch: 5/12
- Secondary Pitch: 0/12
Add to Cart
Pricing
– westhomeplanners.com
Main & 2nd Floor Plans – westhomeplanners.com
– westhomeplanners.com
– westhomeplanners.com
– westhomeplanners.com
[Back to Search Results]

833–493–0942



