Plan No.181601
Beckoning Country Porch
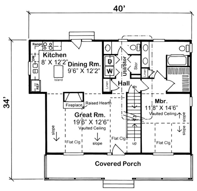
This country styled home includes a welcoming porch perfect for a front porch swing. Once inside, the great room incorporates a vaulted ceiling and a central fireplace to create a spacious yet comfortable cozy atmosphere. The L-shaped kitchen is convenient and efficient. It includes an island and double sink. Flowing from the kitchen is the dining room. The first floor master suite includes a vaulted ceiling, a large walk-in closet, a private bath and a private deck with a hot tub. Two additional bedrooms are on the second floor and share use of the full bath in the hall.
Specifications
Total 1560 sq ft
- Main: 1061
- Second: 499
- Third: 0
- Loft/Bonus: 0
- Basement: 1061
- Garage: 0
Rooms
- Beds: 3
- Baths: 2
- 1/2 Bath: 1
- 3/4 Bath: 0
Ceiling Height
- Main: 8'0
- Second: 8'0
- Third:
- Loft/Bonus:
- Basement:
- Garage:
Details
- Exterior Walls: 2x6
- Garage Type:
- Width: 40'0
- Depth: 34'0
Roof
- Max Ridge Height: 23'0
- Comments: (Main Floor to Peak)
- Primary Pitch: 12/12
- Secondary Pitch: 0/12
Add to Cart
Pricing
– westhomeplanners.com
– westhomeplanners.com
– westhomeplanners.com
Alt. Floor Plan – westhomeplanners.com
– westhomeplanners.com
[Back to Search Results]

833–493–0942



