Plan No.286681
Specifications
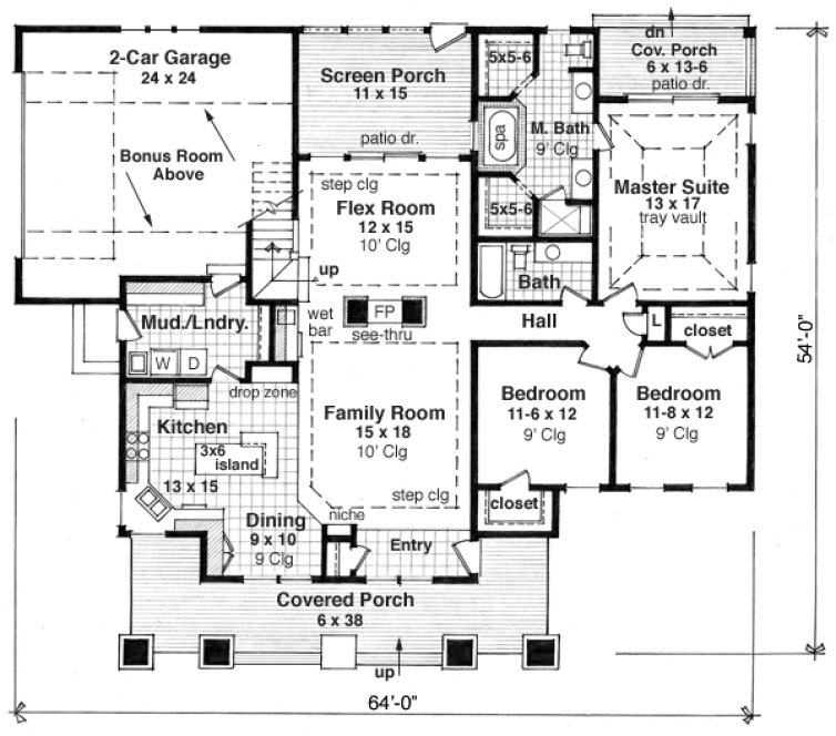
Total 1866 sq ft
- Main: 1866
- Second: 0
- Third: 0
- Loft/Bonus: 288
- Basement: 0
- Garage: 576
Rooms
- Beds: 3
- Baths: 2
- 1/2 Bath: 0
- 3/4 Bath: 0
Ceiling Height
- Main: 9'0
- Second:
- Third:
- Loft/Bonus: 8'0
- Basement:
- Garage:
Details
- Exterior Walls: 2x6
- Garage Type:
- Width: 64'0
- Depth: 54'0
Roof
- Max Ridge Height: 27'6
- Comments: (Main Floor to Peak)
- Primary Pitch: 9/12
- Secondary Pitch: 0/12
Add to Cart
Pricing
– westhomeplanners.com
– westhomeplanners.com
– westhomeplanners.com
Front – westhomeplanners.com
Left & Front Elevation – westhomeplanners.com
– westhomeplanners.com
Opt. Basement Stairs – westhomeplanners.com
[Back to Search Results]

833–493–0942





