Plan No.310911
Watching the Canoes Float By
They sat down on the front porch and watched as the canoes floated by. People always enjoyed canoeing at this point of River Bend because of its thrilling rapids. Watching the canoes was a family event because of the variety of expressions on the canoeist faces and the screams of excitement as they battled the rapids. Mom would make scorecards for everyone to hold up to rate the thrill seekers on their skills.
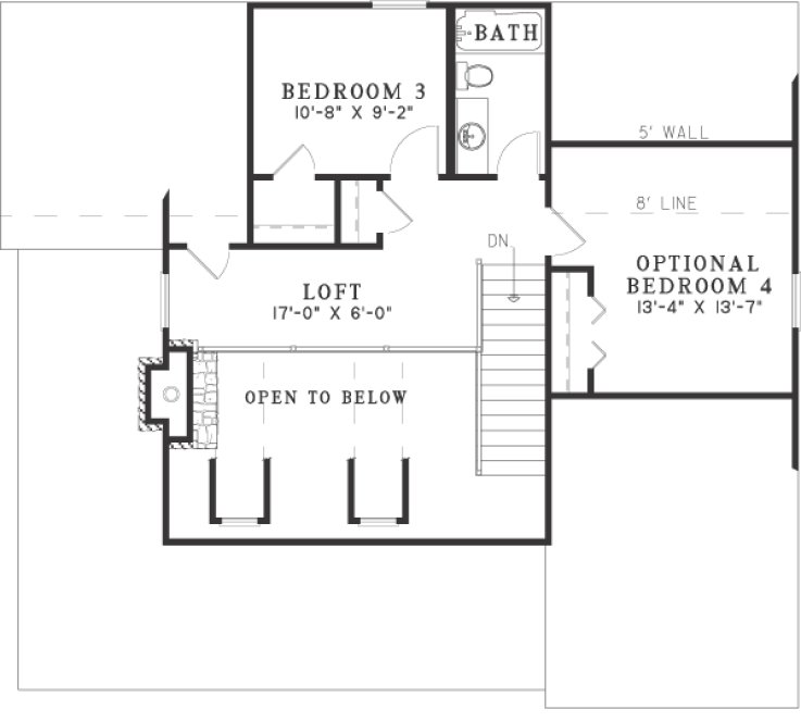
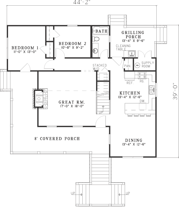
Specifications
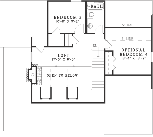
Total 1472 sq ft
- Main: 1140
- Second: 332
- Third: 0
- Loft/Bonus: 199
- Basement: 0
- Garage: 0
Rooms
- Beds: 4
- Baths: 2
- 1/2 Bath: 0
- 3/4 Bath: 0
Ceiling Height
- Main: 8'0
- Second: 8'0
- Third:
- Loft/Bonus:
- Basement:
- Garage:
Details
- Exterior Walls: 2x4
- Garage Type:
- Width: 44'2
- Depth: 39'0
Roof
- Max Ridge Height: 22'8
- Comments: (Main Floor to Peak)
- Primary Pitch: 10/12
- Secondary Pitch: 0/12
Add to Cart
Pricing
– westhomeplanners.com
– westhomeplanners.com
– westhomeplanners.com
– westhomeplanners.com
– westhomeplanners.com
– westhomeplanners.com
[Back to Search Results]

833–493–0942




