Plan No.170743
Specifications
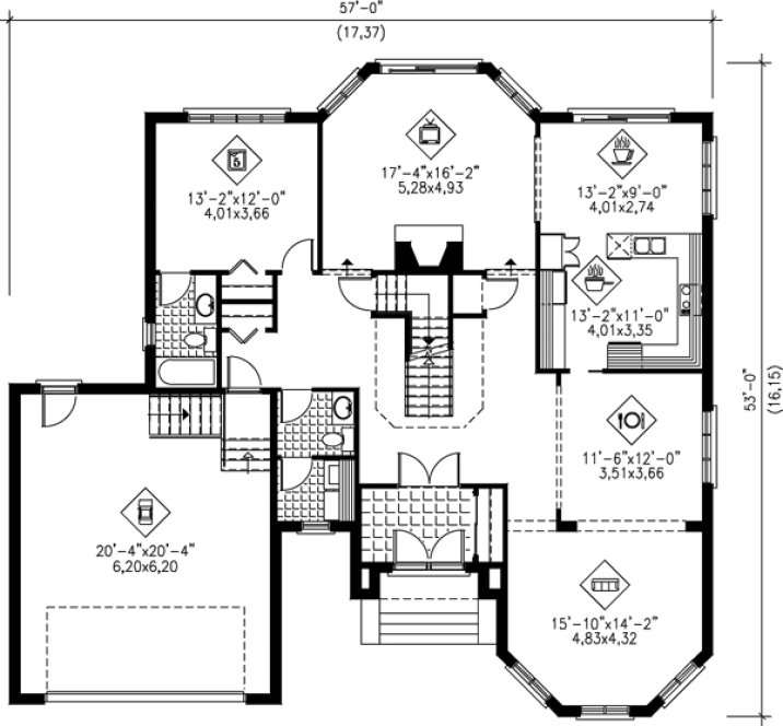
Total 3470 sq ft
- Main: 1784
- Second: 1686
- Third: 0
- Loft/Bonus: 0
- Basement: 0
- Garage: 0
Rooms
- Beds: 5
- Baths: 3
- 1/2 Bath: 1
- 3/4 Bath: 0
Ceiling Height
- Main:
- Second:
- Third:
- Loft/Bonus:
- Basement:
- Garage:
Details
- Exterior Walls: 2x6
- Garage Type: doubleGarage
- Width: 57'0
- Depth: 53'0
Roof
- Max Ridge Height: 41'0
- Comments: (Main Floor to Peak)
- Primary Pitch: 0/12
- Secondary Pitch: 0/12
Add to Cart
Pricing
– westhomeplanners.com
– westhomeplanners.com
– westhomeplanners.com
3D Main Floor – westhomeplanners.com
3D 2nd Floor – westhomeplanners.com
– westhomeplanners.com
[Back to Search Results]

833–493–0942




