Plan No.638880
Elegance In A Starter Or Retirement Home
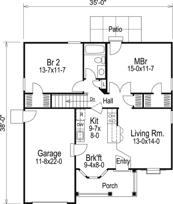
This home features an eye-catching exterior and has a spacious porch. The breakfast room with bay window is open to the living room and adjoins the kitchen with a pass-through snack bar. The bedrooms are quite roomy and feature walk-in closets. The master bedroom has double entry doors and access to the rear patio.
Specifications
Total 888 sq ft
- Main: 888
- Second: 0
- Third: 0
- Loft/Bonus: 0
- Basement: 0
- Garage: 257
Rooms
- Beds: 2
- Baths: 1
- 1/2 Bath: 0
- 3/4 Bath: 0
Ceiling Height
- Main: 8'0
- Second:
- Third:
- Loft/Bonus:
- Basement:
- Garage:
Details
- Exterior Walls: 2x4
- Garage Type: singleGarage
- Width: 35'0
- Depth: 38'0
Roof
- Max Ridge Height: 18'4
- Comments: (Main Floor to Peak)
- Primary Pitch: 0/12
- Secondary Pitch: 0/12
Add to Cart
Pricing
– westhomeplanners.com
– westhomeplanners.com
– westhomeplanners.com
– westhomeplanners.com
– westhomeplanners.com
[Back to Search Results]

833–493–0942



