Plan No.633890
Ideal Design For A Narrow Lot
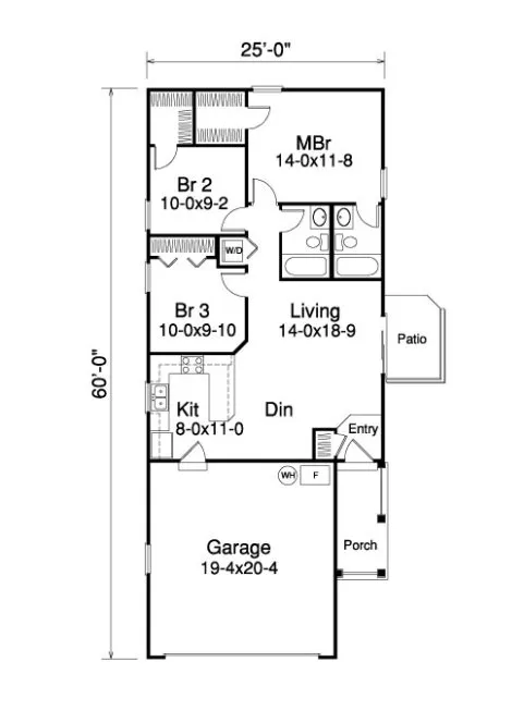
The spacious front porch leads you into the adorable living area and relaxing dining area that opens to the well designed kitchen with convenient breakfast bar. A small patio with privacy fence creates an awesome exterior and is accessed from enchanting living room. The comfortable master bedroom includes a large walk-in closet and its own private full bath.
Specifications
Total 983 sq ft
- Main: 983
- Second: 0
- Third: 0
- Loft/Bonus: 0
- Basement: 0
- Garage: 393
Rooms
- Beds: 3
- Baths: 2
- 1/2 Bath: 0
- 3/4 Bath: 0
Ceiling Height
- Main: 8'0
- Second:
- Third:
- Loft/Bonus:
- Basement:
- Garage:
Details
- Exterior Walls: 2x4
- Garage Type: singleGarage
- Width: 25'0
- Depth: 60'0
Roof
- Max Ridge Height: 18'0
- Comments: (Main Floor to Peak)
- Primary Pitch: 0/12
- Secondary Pitch: 0/12
Add to Cart
Pricing
– westhomeplanners.com
– westhomeplanners.com
– westhomeplanners.com
– westhomeplanners.com
– westhomeplanners.com
[Back to Search Results]

833–493–0942



