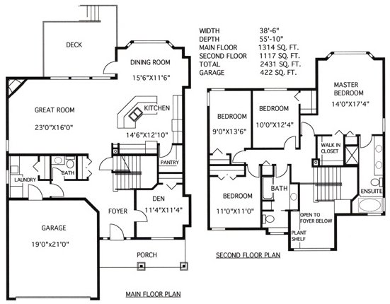
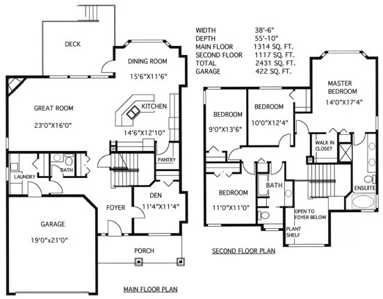
Plan No.501344
Specifications
Total 2431 sq ft
- Main: 1314
- Second: 1117
- Third: 0
- Loft/Bonus: 0
- Basement: 0
- Garage: 422
Rooms
- Beds: 4
- Baths: 2
- 1/2 Bath: 1
- 3/4 Bath: 0
Ceiling Height
- Main:
- Second:
- Third:
- Loft/Bonus:
- Basement:
- Garage:
Details
- Exterior Walls: 2x6
- Garage Type: doubleGarage
- Width: 38'6
- Depth: 55'10
Roof
- Max Ridge Height:
- Comments: ()
- Primary Pitch: 0/12
- Secondary Pitch: 0/12
Add to Cart
Pricing
Full Rendering – westhomeplanners.com
Floor Plans – westhomeplanners.com
[Back to Search Results]

833–493–0942
