Plan No.671000
Attractive Beach-Style Cabin
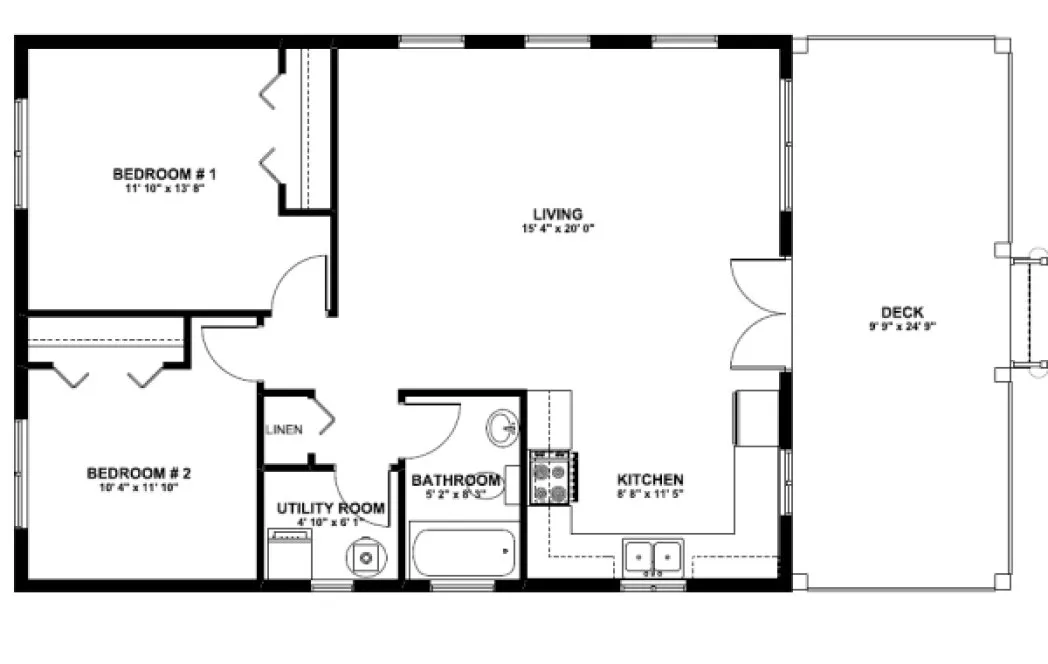
This attractive beach cabin with a feature Dutch gable roof provides an interesting and unique front elevation. The home is designed with a shaded porch creating an open dining/barbeque area. Inside there is an open plan lounge area and kitchen that creates a large living space. Two well-proportioned bedrooms with wardrobe space and a fully furnished bathroom complete this home.
Specifications
Total 875 sq ft
- Main: 875
- Second: 0
- Third: 0
- Loft/Bonus: 0
- Basement: 0
- Garage: 0
Rooms
- Beds: 2
- Baths: 1
- 1/2 Bath: 0
- 3/4 Bath: 0
Ceiling Height
- Main: 8'0
- Second:
- Third:
- Loft/Bonus:
- Basement:
- Garage:
Details
- Exterior Walls: 2x6
- Garage Type:
- Width: 25'0
- Depth: 45'0
Roof
- Max Ridge Height: 15'2
- Comments: (Main Floor to Peak)
- Primary Pitch: 6/12
- Secondary Pitch: 3/12
Add to Cart
Pricing
– westhomeplanners.com
– westhomeplanners.com
– westhomeplanners.com
– westhomeplanners.com
– westhomeplanners.com
[Back to Search Results]

833–493–0942



