Plan No.195075
Two Bedroom Garage Loft
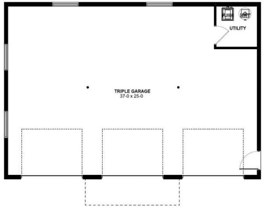
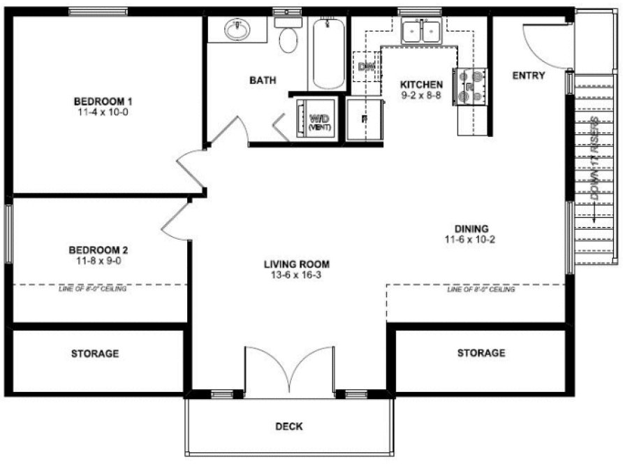
The two bedroom suite over this three car garage is excellent for year round living or for use as guest accommodations. The exterior staircase allows access to the suite without entry through garage for the option of renting. The deck off the front of the loft gives the living area a sunny open feeling.
Specifications
Total 880 sq ft
- Main: 988
- Second: 880
- Third: 0
- Loft/Bonus: 0
- Basement: 0
- Garage: 988
Rooms
- Beds: 2
- Baths: 1
- 1/2 Bath: 0
- 3/4 Bath: 0
Ceiling Height
- Main: 9'4
- Second: 8'0
- Third:
- Loft/Bonus:
- Basement:
- Garage:
Details
- Exterior Walls: 2x6
- Garage Type:
- Width: 38'0
- Depth: 26'0
Roof
- Max Ridge Height: 25'5
- Comments: (Main Floor to Peak)
- Primary Pitch: 12/12
- Secondary Pitch: 6/12
Add to Cart
Pricing
– westhomeplanners.com
– westhomeplanners.com
– westhomeplanners.com
– westhomeplanners.com
– westhomeplanners.com
– westhomeplanners.com
– westhomeplanners.com
– westhomeplanners.com
– westhomeplanners.com
– westhomeplanners.com
– westhomeplanners.com
– westhomeplanners.com
– westhomeplanners.com
– westhomeplanners.com
– westhomeplanners.com
– westhomeplanners.com
– westhomeplanners.com
[Back to Search Results]

833–493–0942















