Plan No.631051
Lovely Master Bedroom
The spacious kitchen with dining area is open to the outdoors and enjoys a handy breakfast bar. A convenient utility room with closet space connects the garage to the rest of the home. The lovely master bedroom features a private bath, walk-in closet, dressing area and access to the large covered porch. The large family room creates openness and boasts a stylish fireplace.
Specifications
Total 1501 sq ft
- Main: 1501
- Second: 0
- Third: 0
- Loft/Bonus: 0
- Basement: 0
- Garage: 484
Rooms
- Beds: 3
- Baths: 2
- 1/2 Bath: 0
- 3/4 Bath: 0
Ceiling Height
- Main: 8'0
- Second:
- Third:
- Loft/Bonus:
- Basement:
- Garage:
Details
- Exterior Walls: 2x4
- Garage Type: doubleGarage
- Width: 48'0
- Depth: 66'0
Roof
- Max Ridge Height: 17'6
- Comments: (Main Floor to Peak)
- Primary Pitch: 6/12
- Secondary Pitch: 0/12
Add to Cart
Pricing
Full Rendering – westhomeplanners.com
MAIN Plan – westhomeplanners.com
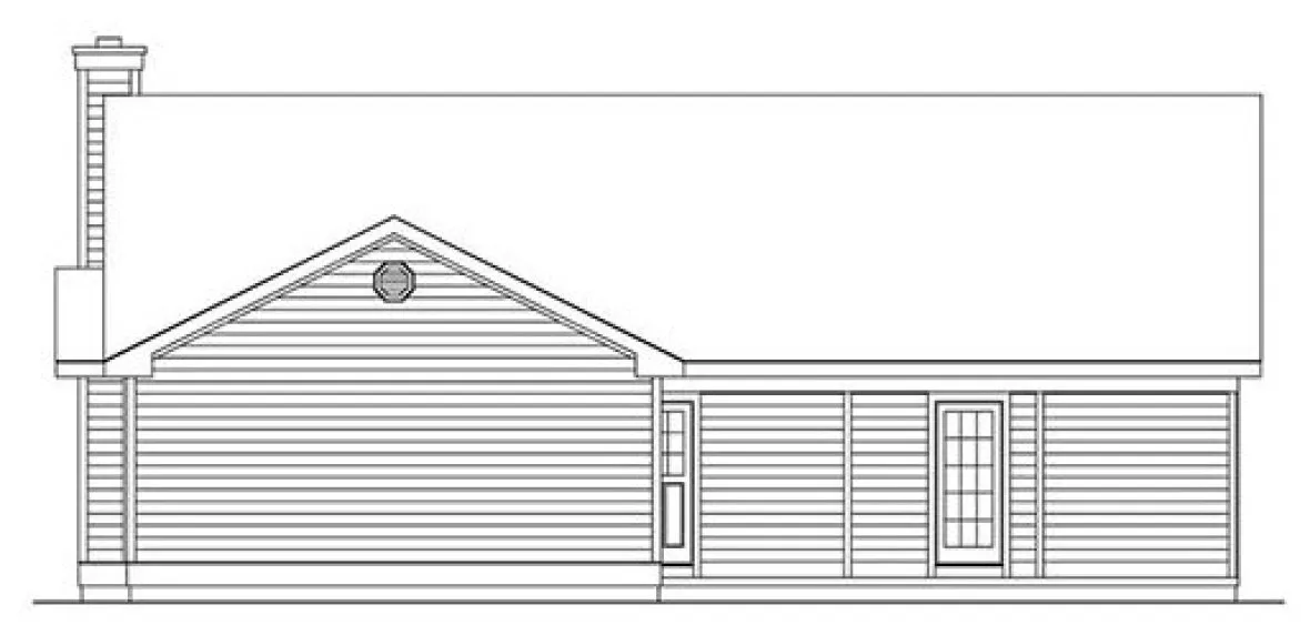
REAR Elevation – westhomeplanners.com
LEFT Elevation – westhomeplanners.com
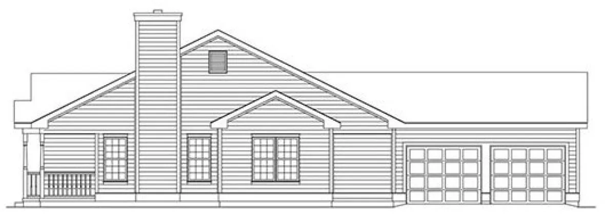
RIGHT Elevation – westhomeplanners.com
[Back to Search Results]

833–493–0942



