Plan No.454381
Specifications
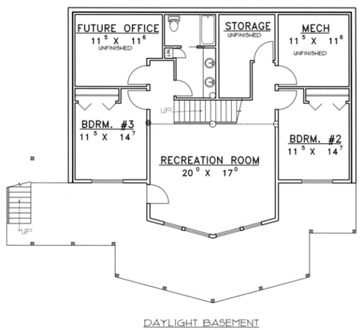
Total 1834 sq ft
- Main: 1444
- Second: 0
- Third: 0
- Loft/Bonus: 390
- Basement: 1444
- Garage: 0
Rooms
- Beds: 3
- Baths: 2
- 1/2 Bath: 1
- 3/4 Bath: 0
Ceiling Height
- Main: 9'0
- Second:
- Third:
- Loft/Bonus: 7'6
- Basement: 9'0
- Garage:
Details
- Exterior Walls: 2x6
- Garage Type:
- Width: 52'0
- Depth: 52'8
Roof
- Max Ridge Height: 23'4
- Comments: (Main Floor to Peak)
- Primary Pitch: 10/12
- Secondary Pitch: 0/12
Add to Cart
Pricing
– westhomeplanners.com
– westhomeplanners.com
– westhomeplanners.com
– westhomeplanners.com
FRONT Elevation – westhomeplanners.com
[Back to Search Results]

833–493–0942



