Plan No.632721
Unique A-Frame Detailing Has Appeal
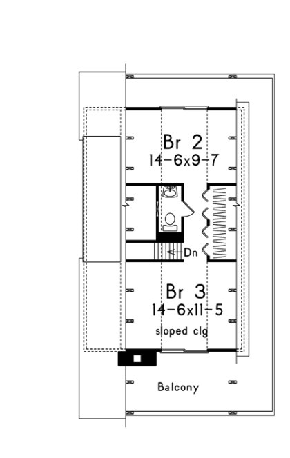
This A-Frame Home has 3 bedrooms, 1 full bath and 1 half bath. This A-Frame home has enormous amounts of outdoor space from the main wrap-around deck to the upper balcony perfect for taking in all the views. A stone fireplace accents the living room upon entering the home. The spacious kitchen includes a snack bar overlooking the living room. A first floor bedroom is roomy and secluded and accesses a private rear deck. There is plenty of closet space for the second floor bedrooms plus a generous balcony which wraps around the second floor.
Specifications
Total 1272 sq ft
- Main: 792
- Second: 480
- Third: 0
- Loft/Bonus: 0
- Basement: 0
- Garage: 0
Rooms
- Beds: 3
- Baths: 0
- 1/2 Bath: 1
- 3/4 Bath: 1
Ceiling Height
- Main:
- Second:
- Third:
- Loft/Bonus:
- Basement:
- Garage:
Details
- Exterior Walls: 2x4
- Garage Type:
- Width: 26'4
- Depth: 44'2
Roof
- Max Ridge Height:
- Comments: ()
- Primary Pitch: 0/12
- Secondary Pitch: 0/12
Add to Cart
Pricing
– westhomeplanners.com
– westhomeplanners.com
– westhomeplanners.com
– westhomeplanners.com
– westhomeplanners.com
[Back to Search Results]

833–493–0942



