Plan No.630885
Vacation Home or Guest Cottage
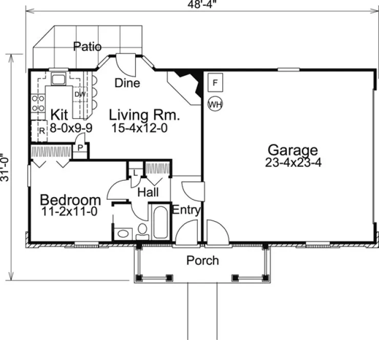
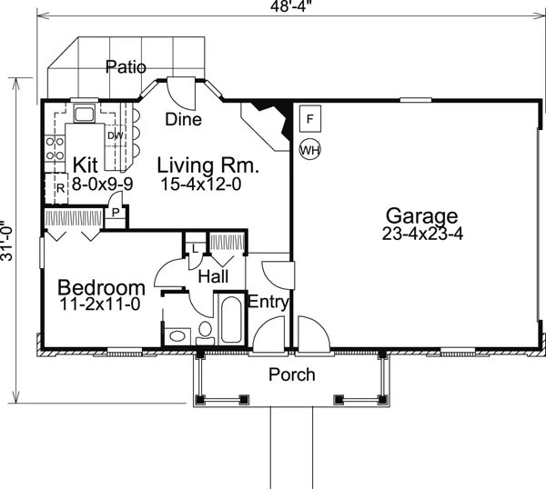
This efficiently-planned design has 1 bedroom and 1 full bath. This very livable floor plan provides only a small footprint. A comfortable living room features a functional entry, bayed dining area, handsome corner fireplace and opens to cheerful kitchen with breakfast bar. The rear patio is perfect for extending entertainment to the outdoors and can be accessed from the bayed dine/living room.
Specifications
Total 588 sq ft
- Main: 588
- Second: 0
- Third: 0
- Loft/Bonus: 0
- Basement: 0
- Garage: 0
Rooms
- Beds: 1
- Baths: 1
- 1/2 Bath: 0
- 3/4 Bath: 0
Ceiling Height
- Main: 8'0
- Second:
- Third:
- Loft/Bonus:
- Basement:
- Garage:
Details
- Exterior Walls: 2x4
- Garage Type: doubleGarage
- Width: 48'0
- Depth: 24'0
Roof
- Max Ridge Height: 17'0
- Comments: (Main Floor to Peak)
- Primary Pitch: 7/12
- Secondary Pitch: 0/12
Add to Cart
Pricing
– westhomeplanners.com
– westhomeplanners.com
– westhomeplanners.com
– westhomeplanners.com
– westhomeplanners.com
[Back to Search Results]

833–493–0942



