Plan No.630746
Sensational Cottage Retreat
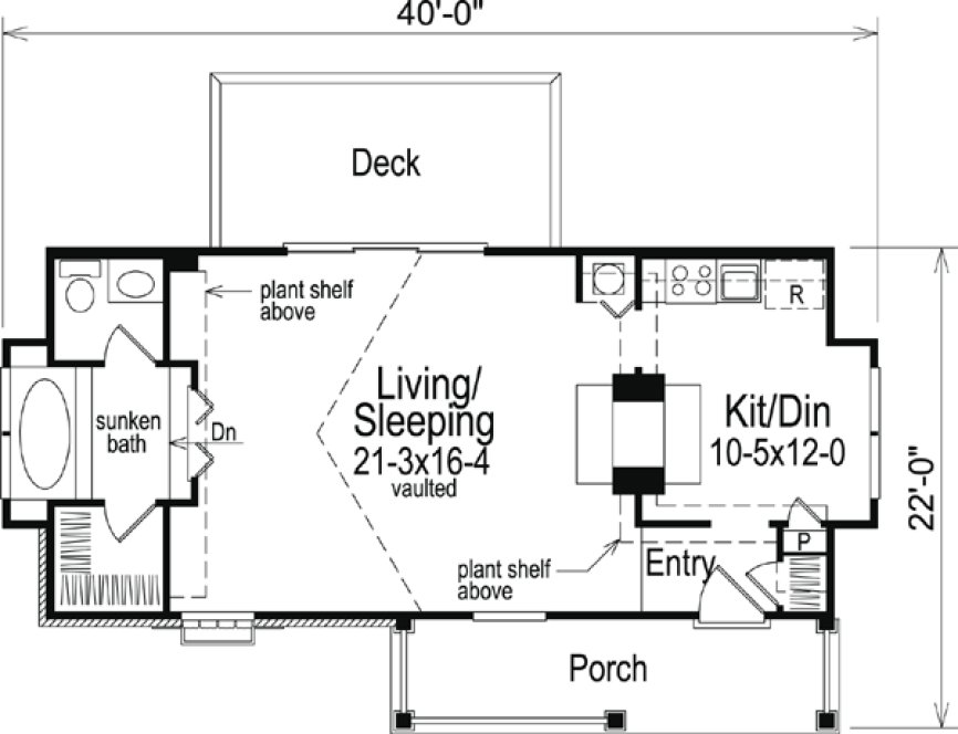
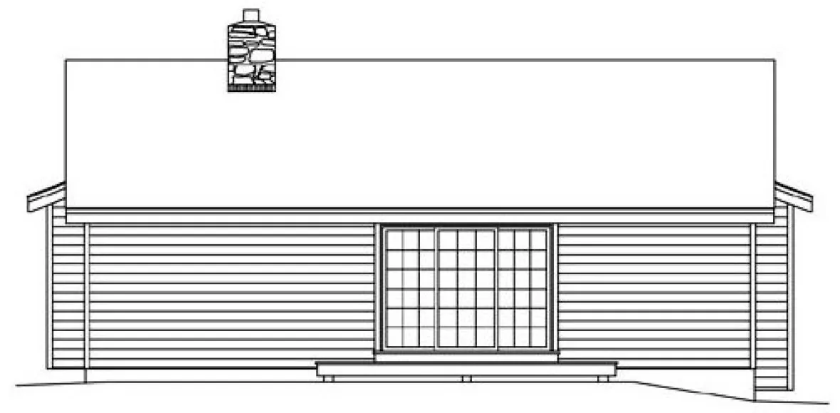
This cottage home has 1 bedroom and 1 full bath. Large Palladian windows adorns each end of the cottage giving a cheery atmosphere throughout. A large vaulted room for living/sleeping features plant shelves on each end, a stone fireplace and wide glass doors for views. The roomy kitchen is vaulted and has a bayed dining area and fireplace. Step down into a sunken and vaulted bath featuring a whirlpool tub-in-a-bay with shelves at each end for storage
Specifications
Total 647 sq ft
- Main: 647
- Second: 0
- Third: 0
- Loft/Bonus: 0
- Basement: 0
- Garage: 0
Rooms
- Beds: 1
- Baths: 1
- 1/2 Bath: 0
- 3/4 Bath: 0
Ceiling Height
- Main: 8'0
- Second:
- Third:
- Loft/Bonus:
- Basement:
- Garage:
Details
- Exterior Walls: 2x4
- Garage Type:
- Width: 40'0
- Depth: 22'0
Roof
- Max Ridge Height: 18'0
- Comments: (Main Floor to Peak)
- Primary Pitch: 10/12
- Secondary Pitch: 0/12
Add to Cart
Pricing
– westhomeplanners.com
– westhomeplanners.com
– westhomeplanners.com
– westhomeplanners.com
– westhomeplanners.com
[Back to Search Results]

833–493–0942



