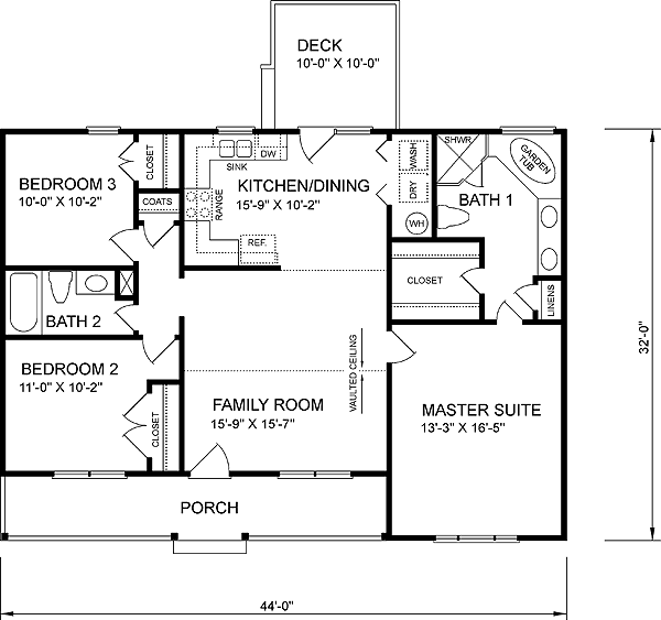
Plan No.658521
Vaulted Ceiling
A vaulted ceiling in the spacious family room and nine-foot-high ceilings in the rest of the house add interior volume throughout this affordable, easy-living home.
Specifications
Total 1258 sq ft
- Main: 1258
- Second: 0
- Third: 0
- Loft/Bonus: 0
- Basement: 0
- Garage: 0
Rooms
- Beds: 3
- Baths: 2
- 1/2 Bath: 0
- 3/4 Bath: 0
Ceiling Height
- Main: 9'0
- Second:
- Third:
- Loft/Bonus:
- Basement:
- Garage:
Details
- Exterior Walls: 2x4
- Garage Type:
- Width: 44'0
- Depth: 32'0
Roof
- Max Ridge Height:
- Comments: ()
- Primary Pitch: 0/12
- Secondary Pitch: 0/12
Add to Cart
Pricing
Full Rendering – westhomeplanners.com
MAIN Plan – westhomeplanners.com
Elevations – westhomeplanners.com
[Back to Search Results]

833–493–0942

