Plan No.653081
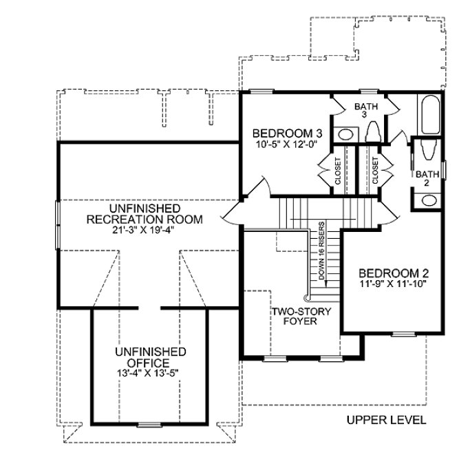
Dramatic Two-Story Foyer
This design offers a great home for today’s busy family. An ideal area where everyone can comfortably and easily gather is designed into the plan: it features an open layout with a family room and adjacent breakfast nook, a fireplace, a high ceiling, plenty of light, and an elevated bar. Other built-in features for satisfying daily use include an elegant front entry with a dramatic two-story foyer, a ground-floor master bedroom with a well-appointed full bath, and a two-car garage with unfinished space above, making a home office or other useful space an affordable option.
Specifications
Total 1803 sq ft
- Main: 1286
- Second: 517
- Third: 0
- Loft/Bonus: 626
- Basement: 0
- Garage: 0
Rooms
- Beds: 3
- Baths: 2
- 1/2 Bath: 1
- 3/4 Bath: 0
Ceiling Height
- Main: 9'0
- Second: 8'0
- Third:
- Loft/Bonus:
- Basement:
- Garage:
Details
- Exterior Walls: 2x4
- Garage Type: doubleGarage
- Width: 46'0
- Depth: 49'0
Roof
- Max Ridge Height: 33'0
- Comments: ()
- Primary Pitch: 12/12
- Secondary Pitch: 0/12
Add to Cart
Pricing
– westhomeplanners.com
– westhomeplanners.com
– westhomeplanners.com
– westhomeplanners.com
[Back to Search Results]

833–493–0942


