Plan No.650096
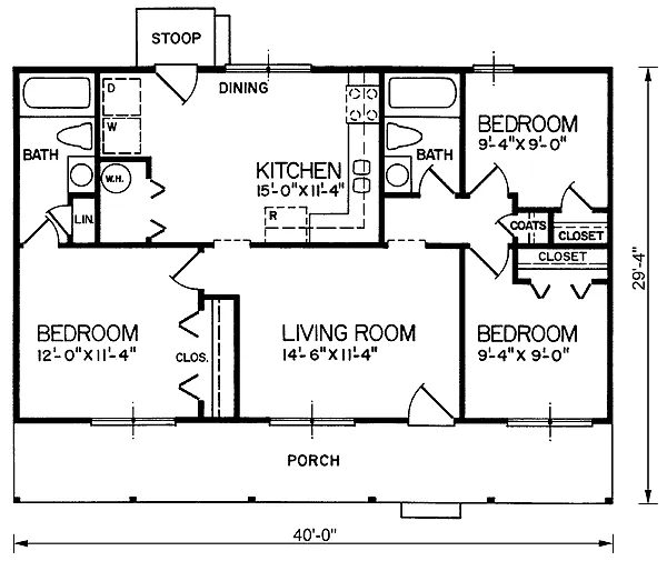
For SLAB foundation: Front porch slab is 40’-0” x 5’-4” House slab is 40’-0” x 24’-0” = 960 sq ft heated area Rear stoop slab is 5’-4” x 4’-0” All of the above 4” reinforced concrete
Specifications
Total 960 sq ft
- Main: 960
- Second: 0
- Third: 0
- Loft/Bonus: 0
- Basement: 0
- Garage: 0
Rooms
- Beds: 3
- Baths: 2
- 1/2 Bath: 0
- 3/4 Bath: 0
Ceiling Height
- Main: 8'0
- Second:
- Third:
- Loft/Bonus:
- Basement:
- Garage:
Details
- Exterior Walls: 2x4
- Garage Type:
- Width: 40'0
- Depth: 30'0
Roof
- Max Ridge Height:
- Comments: ()
- Primary Pitch: 3/12
- Secondary Pitch: 0/12
Add to Cart
Pricing
Full Rendering – westhomeplanners.com
MAIN Plan – westhomeplanners.com
– westhomeplanners.com
[Back to Search Results]

833–493–0942

