Plan No.505842
Specifications
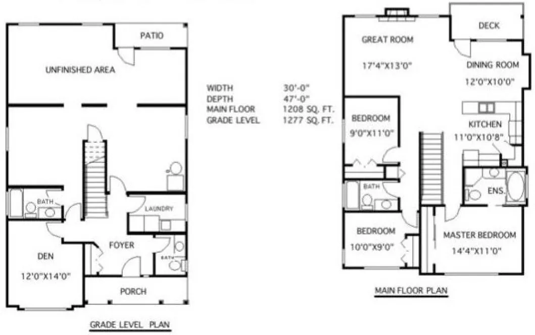
Total 2485 sq ft
- Main: 0
- Second: 1208
- Third: 0
- Loft/Bonus: 0
- Basement: 1277
- Garage: 0
Rooms
- Beds: 3
- Baths: 3
- 1/2 Bath: 0
- 3/4 Bath: 0
Ceiling Height
- Main:
- Second: 9'0
- Third:
- Loft/Bonus:
- Basement: 9'0
- Garage:
Details
- Exterior Walls: 2x6
- Garage Type:
- Width: 30'0
- Depth: 47'0
Roof
- Max Ridge Height: 30'10
- Comments: (Main Fl to Peak)
- Primary Pitch: 9/12
- Secondary Pitch: 0/12
Add to Cart
Pricing
– westhomeplanners.com
Floor Plans – westhomeplanners.com
– westhomeplanners.com
[Back to Search Results]

833–493–0942

